Prodej - dům/vila, 181 m²
Nabízíme k prodeji řadový rodinný dům 4+kk/G 181m² s terasou a zahradou, Sendražice, Kolín,
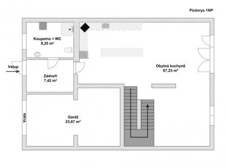
Hledáte krásné a prostorné bydlení v klidné části Kolína? Představujeme vám rodinný dům v obci Sendražice, který splní všechny vaše požadavky na komfortní život. Tato nemovitost se nachází v oblíbené lokalitě s výbornou občanskou vybaveností a dopravní dostupností. Dům z roku 2012 je postaven na parcele o celkové rozloze 311 m² a nabízí užitkovou plochu 181 m². Skládá se ze dvou nadzemních podlaží a je projektován jako výjimečný a luxusně zařízený dům. K dispozici je také dobře udržovaná zahrada, která přidává nemovitosti na estetické hodnotě. Vstupem do tohoto nádherně a vkusně zařízeného domu, kde bylo myšleno i na detaily, Vás ohromí. Spodní část domu se skládá z chodby, která umožňuje vstup do garáže a koupelny se sprchovým koutem a toaletou. Dále je zde nadčasová kuchyň s jídelnou a obývací částí, která je oddělena dekoračním sloupem a zajišťuje tím, soukromí v obývacím prostoru. Celé první nadzemní podlaží se pyšní podlahovým vytápěním. Celý prostor je vkusně sladěn a byly použity jen ty nejlepší materiály. Vstup na zahradu zajištuje prostorná terasa o velikosti 38m² na které je dostatečný prostor pro posezení, grilování nebo odpočinek ve vířivce. Celý je možno zastínit automatickou markýzou na dálkové ovládání. Zatravněný prostor má samo závlahu značky Gardena. Dubové schody vás dovedou do druhého nadzemního podlaží, které má tři neprůchozí pokoje, šatnu a koupelnu s vanou. Velmi prakticky je řešena ložnice, která je průchozí do prostorné šatny a i do koupelny. Tato ložnice má klimatizaci. Koupelna v patře je vybavena podlahovým vytápěním a unikátně velkou vanou. Je možnost využít nadstandardní půdní prostor, který umožňuje vybudování dalšího obytného patra, nebo využití jako úložné prostory. V oblasti je zajištěna veřejná vodovodní a kanalizační síť, a dům je připojený na plynovod. Pro parkování jsou k dispozici garáž pro jedno vozidlo a další parkovací místa před domem. Tento rodinný dům je ideálním řešením pro každého, kdo hledá spojení klidného bydlení s vysokým standardem obývání v atraktivní lokalitě. Nechejte se nadchnout kvalitou a atmosférou tohoto domu v Sendražicích, a učiňte z něj svůj nový domov. Ráda Vám tuto nemovitost představím. Financování je možné zprostředkovat přes naše finanční specialisty.


