Prodej - dům/vila, 181 m²
Nabízím k prodeji luxusně vybavený rodinný dům 4+kk/G 181m² s terasou a zahradou, Sendražice, Kolín,
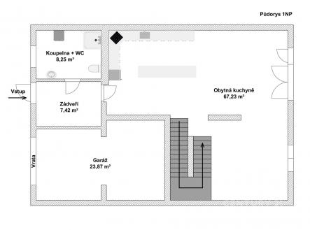
Na prodej je rodinný dům s dispozicí čtyři plus kk, který se nachází v klidné části Sendražic u Kolína na adrese K Ovčárům 562. Tento dům byl postaven v roce 2012 a stojí na pozemku o celkové rozloze 311 m². Celková obytná plocha činí 100 m², s využitelnou plochou 181 m² a postavenou plochou 218 m². Součástí domu je také terasa o velikosti 37 m² a garáž o velikosti 24 m². Dům je vybavený moderním podlahovým topením a je připojen k veřejné vodovodní a kanalizační síti. Tepelná náročnost budovy je hodnocena kategorií B, což odpovídá vysoké úspornosti. Celý dům je napojen na plynovou distribuci a disponuje rychlým internetem přes VDSL. V rámci interiéru najdeme kompletně zařízené prostory, které jsou připraveny k okamžitému užívání. Zahrada o rozloze 311 m² poskytuje dostatečný prostor pro relaxaci a rekreaci na čerstvém vzduchu, což je ideální pro rodiny s dětmi nebo pro ty, kdo hledají útočiště před městským ruchem. Bezprostřední blízkost důležité infrastruktury jako banky, místní úřady, školky, pošty, restaurace, sportoviště, lékaře a základní školy, zajišťuje veškerý komfort pro každodenní život. Místo je také dobře dostupné díky asfaltové příjezdové cestě a veřejné dopravě. Přestože dům není ihned volný k nastěhování a není možné ho financovat hypotékou, jeho luxusní stav a výhody, jako je terasa či možnost parkování v garáži i na pozemku, činí z této nemovitosti velmi atraktivní investici. Navíc, prodejní cena 12 790 000 Kč vysoko reflektuje kvalitu a lokalitu této nemovitosti. V případě, že hledáte komfortní bydlení v tiché a příjemné lokalitě nedaleko Kolína, tento domov by mohl splnit všechna vaše očekávání. Ideální pro rodiny hledající prostor a pohodlí, které městský byt nemůže nabídnout. Přijďte se podívat a přesvědčte se o kvalitách této nabídky.


