Prodej - dům/vila, 404 m²
Prodej vícegeneračního rodinného domu se 3 byty, obec Koleč, okres Kladno
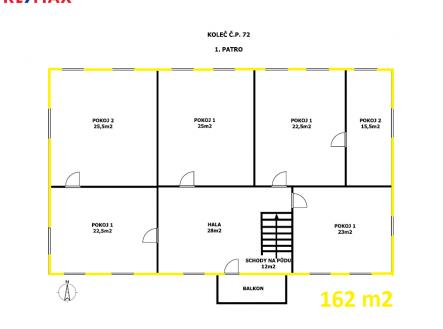
Dovolujeme si Vám nabídnout prodej rodinného domu v obci Koleč v okrese Kladno. Jedná se o vícegenerační dům o dvou nadzemních podlažích, kde je možné vybudovat 3 bytové jednotky a případně rozšířit užitnou plochu o půdní vestavbu. Nemovitost lze využít pro velkou či vícegenerační rodinu pro vybudování rodinného sídla či pro vlastní bydlení v patře v kombinace s pronajímáním dvou bytových jednotek v přízemí. V 1. nadzemním podlaží o výměře cca 160 m2 se nachází vstupní hala (12 m²) a bylo by zde možné vybudovat dva byty o dispozici 1+kk / 1+1 (58 m²) a o dispozici 2+kk / 2+1 (70 m²). Dále je zde vstup do menšího sklepa. 2. nadzemním podlaží má užitnou plochu cca dalších 160 m2 a zde by bylo možné mít jeden velikostně nadstandardní byt. Nachází se zde také vstup na balkon a na půdu (dalších cca 142 m²), kde je možné případně dovybudovat půdní vestavbu a rozšířit užitnou plochu domu. Současný majitel započal rekonstrukci bytového domu, některé příčky byly vybourány a dispozice změněny. V místnostech jsou vyvedeny přípravy na přípojky vody a odpadu. V přízemí byla vyměněna stará okna za plastová, v patře jsou starší dřevěná. Dále byly v patře sníženy stropy a instalován zateplený sádrokarton s přípravou na nové rozvody elektřiny. Střecha je z roku 2002, byly vyměněny tašky a folie a byly přidány nové trámy. Stavba má přípojku plynu, které ale není v současné chvíli využívána, odpad je řešen jímkou o kapacitě cca 10 m3. Přípojka elektřiny byla navýšena na výkon 80 kW. Voda je napojena obecní, ale na pozemku se nachází i vlastní studna, která je momentálně neužívaná. Nemovitost se nachází v obci Koleč s dojezdem do Kladna či do Kralup nad Vltavou za 15 minut a na okraj Prahy (Ruzyně) za 20 minut. Parkování je možné před nemovitostí na obecním pozemku. V Kolči je mateřská školka, 1. stupeň základní školy, základní občanská vybavenost. Nemovitost téměr sousedí s barokním zámkem Koleč, který postupně prochází rekonstrukcí a je zde umístěno včelařské muzeum. Nedaleko se také nachází jezdecká stáj. V případě zájmu o více informací či o prohlídku kontaktuje makléřku nabídky. Fotografie obsahují digitální vizualizace. Prodávající si vyhrazuje právo vybrat kupujícího na základě jím zvolených kritérií.


