Prodej - dům/vila, 309 m²
Rodinný dům Nová Čtvrť Kněževes, okres Praha - západ
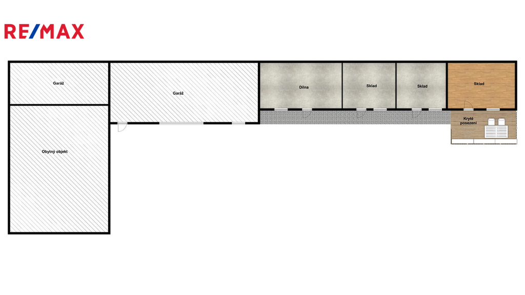
Dovoluji si Vám exkluzivně nabídnout rodinný dům po většinové rekonstrukci v obci Kněževes v okrese Praha - západ, který Vám garantuje pohodové rodinné bydlení s možností zázemí pro podnikání (autodílna, krátkodobé ubytování apod.). V celém domě byla osazena okna s izolačním trojsklem, která v kombinaci se zateplením a tepelným čerpadlem vykazuje energetickou náročnost stavby se zařazením do klasifikační úsporné třídy C. Dům disponuje třemi podlažími a je částečně podsklepen. 1. NP nabízí vstupní chodbu, kuchyň, obývací pokoj, ložnici, koupelnu se sprchovým koutem a toaletou, spíž a vstup do sklepa. Ve 2. NP je k dispozici obývací pokoj s krbovou vložkou, kuchyň s jídelnou, ložnice s vestavěnou skříní, koupelna s vanou a toaletou. Podkroví Vám nabídne prostorný obývací pokoj s přípravou na instalaci kuchyňské linky, ložnici s vestavěnou skříní a výstupem na lodžii, koupelnu se sprchovým koutem a toaletou. Celý prostor podkroví je mj. osazen střešními okny Velux, která Vám zajistí maximální světlost prostoru. Součástí domu je nadstandardní garáž pro čtyři auta o celkové ploše 106 m2, dále welness zóna s posilovnou a saunou, tři samostatné místnosti s přípravou využití např. na krátkodobý pronájem. Tato část je vytápěna samostatným elektro kotlem. Další parkovací možnosti jsou na dvoře domu, který je vydlážděn zámkovou dlažbou. Přidanou hodnotou domu je pečlivě udržovaná zahrada, která byla navržena zahradním architektem, a spolu s možností venkovního posezení v altánu, máte možnost další relaxace pohodového bydlení. Pro zálivku můžete využívat retenční nádrž o objemu 30 m3 dešťové vody, kterou pohodlně dopravíte na potřebné místa zahrady za pomocí tlakového čerpadla. Dům je napojen na kompletní inženýrské sítě, tj. elektřina, obecní vodovod, kanalizace a plyn. Obec nabízí základní občanskou vybavenost, mateřská školka, dvě restaurace, obchod s potravinami, kulturní dům, nebo fanoušci dopravních letadel ocení Val s vyhlídkou u hlavní vzletové a přistávací dráhy na letišti Václava Havla. Rozhodně oceníte výborné napojení na dálnici D6 a D7, dostupnost letiště Václava Havla a rovněž Prahy 6 (metro trasa A Nádraží Veleslavín cca 12 min a Vítězné nám. 20 min). Další volnočasové možnosti jsou v nedalekém POP Praha, s nabídkou oblečení mnoha světových značek, a pro děti zábavný park Majaland, kde můžete strávit den s nezapomenutelnými zážitky. Možnost financováni koupě za pomocí hypotéčního úvěru, s jehož zajištěním Vám velmi rádi pomohou naši finanční specialisté. V případě, že Vás tato nabídka zaujala, neváhejte mě kontaktovat, a velmi rád si s Vámi dohodnu vhodný termín osobní prohlídky. Děkuji a těším se na setkání s Vámi. :-)

