Prodej - komerční objekt, sklad, 263 m²
Prodej výrobně skladovací areálu, užitná plocha 263 m2, celková plocha pozemků 2124 m2, Klobouky u B
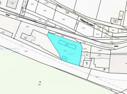
Prodej výrobně skladovací areálu, užitná plocha 263 m2, celková plocha pozemků 2124 m2, Klobouky u Brna Jedná se o výrobně-skladovací areál se stávajícími budovami: administrativní budova s kancelářemi a sociálním zázemím, navazující sklady, dílna, garáže, přístřešky; zpevněnou a manipulační plochou a doplňkovými stavbami, to vše nacházející se na pozemcích uvedených na LV č. 507 v k.ú. Klobouky u Brna. Prodej probíhá transparentně formou elektronického výběrového řízení. Více informací k dispozici na: www.verejnedrazby.cz/A7901 Jde o areál, který dle platného územního plánu spadá do funkčních ploch – území smíšená – SV plochy smíšené výrobní. Areál tak má potenciál případné budoucí výstavby – např. podmíněně přípustné rodinné domy a byty pro správce, majitele, zaměstnance. Průjezdný areál s mostovou váhou je situován v těsné blízkosti komunikace s veškerými inženýrskými sítěmi, v okrajové části obce Klobouky u Brna, na ulici Nádražní. Je oplocen, napojen na elektřinu a disponuje vlastní studnou. Vytápění administrativní budovy je řešeno kamny na tuhá paliva a přímotopy. Odpadní vody jsou svedeny do kanalizace. Samostatné měřidlo na elektřinu. Přípojka na internet. Vodovodní řad a vedení plynu v komunikaci před areálem. Dispozice (místnosti): kancelář 1 12,00 m2 kancelář 2 22,75 m2 WC + předsíňka 3,15 m2 obslužná místnost k váze 6,13 m2 sklad 1 20,14 m2 sklad 2 20,28 m2 WC 1,02 m2 garáž (menší) 13,38 m2 garáž (velká)/dílna 57,12 m2 dřevník 5,70 m2 plechová dvojgaráž 52,26 m2 dřevěný přístřešek 29,58 m2 zděný přístřešek (samostatná garáž) 20,13 m2 Vjezd do objektu je možný dvěma vjezdovými branami směrem od hlavní silnice. Šíře hlavní brány 5,30 m. Funkční rozdělení ploch: Administrativní, skladová (výrobní) užitná plocha se zázemím činí: cca 263,64 m2 Zastavěná plocha budov zapsaných v KN: 273 m2 Manipulační plocha včetně přístřešků činí cca 1800 m2 Celková výměra pozemků činí 2.124 m2 Adresa: Nádražní 822/90, 691 72 Klobouky u Brna Pro více infrormací nás neváhejte kontaktovat - děkujeme.


