Prodej bytu, 2+kk, 54 m²
Prodej bytu 2KK
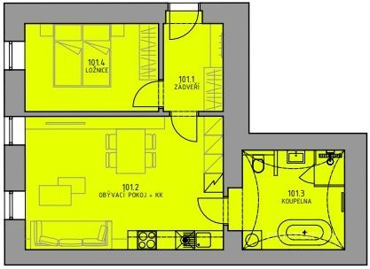
Nabízíme k prodeji byt 2+kk využitelný i jako komerční prostor v centru Klimkovic, ideální pro podnikání. Tento prostor se nachází v přízemí nově zrekonstruovaného domu a nabízí veškerý komfort pro podnikání, i jako moderní bydlení. Vlastnosti: • 2 pokoje • Nově zrekonstruovaný • Koupelna s WC • Parkování možné v přilehlé ulici Lokalita: • Centrum Klimkovic • Výborná dopravní dostupnost • Veškerá občanská vybavenost v dosahu Pro více informací neváhejte kontaktovat vašeho realitního poradce Karla Jocha


