Prodej - dům/vila, 233 m²
Prodej rodinného domu, 233 m², Klatovy, ul. Nedbalova
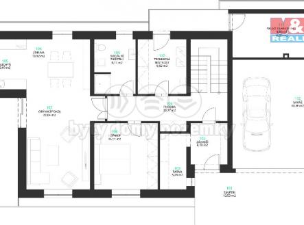
Nabízíme k prodeji hrubou stavbu rodinného domu s terasou a dvoj garáží, vč. stavebního povolení, en. štítku, měření radonu a uhrazeného vynětí ze zemědělského půdního fondu.7 Jedná se o hrubou stavbu s monolitickými základy ve kterých je dokončena ležatá kanalizace, která je dále napojena na veřejnou kanalizaci (splašková, dešťová). Betonové stropy. Kolem domu je uložen zemnící pásek s vývody na hromosvody. Obvodové zdivo je z 500 mm cihel. Fotografie jsou ilustrativní dle stavby č. 54 která je již dokončený. Stavbu lze dokončit na klíč od cca 3 mil. korun. Hrubá stavba se nachází v nově vznikající zástavbě na okraji Klatov zaručující klidné prostředí, kousek od Šumavské zeleně. Klatovy se nachází 40 km od Plzně. Město nabízí plnou občanskou vybavenost, nachází se zde několik středních a základních škol, školek, nová moderní nemocnice a divadlo. Pokud Vás nabídka zaujala, neváhejte kontaktovat našeho makléře


