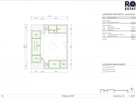
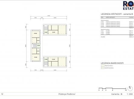
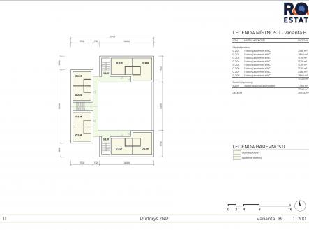
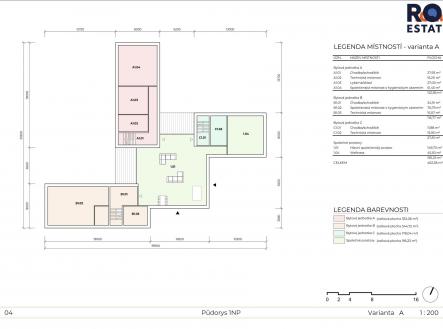
Prodej - hotel, 9 674 m²
Pension s pozemkem 10 000m2 – ideální pro podnikání i bydlení
Hledáte investiční příležitost v turistickém ruchu? Pak jste právě našli to pravé místo. Jen 500 metrů od civilizace, na klidném místě obklopeném přírodou, se nachází pozemek se zpracovanou studií pro výstavbu výjimečného ubytování s pozemkem o rozloze téměř 10 000 m². V současné době zde již stojí funkční rodinný dům s pensionem, který pohodlně ubytuje až šest rodin, které mají k dispozici dvě plně vybavené kuchyně a několik koupelen. Součástí je také prostorný byt 3+kk s terasou, kde mohou bydlet samotní majitelé – ideální pro spojení podnikání s vlastním bydlením. Na pozemku máme vytvořené dvě studie využitelnosti, které jsou projednané na stavebním úřadě i na obci a zobrazují tak skutečnou využitelnost pozemku jak při zachování současné stavby, tak při jejím odstranění. Současné využití dále nabízí stylovou společenskou boudu s barem, výčepem a kapacitou cca 30 míst k sezení - skvělé místo pro oslavy, svatby nebo třeba dětskou hernu. Díky velkorysému prostoru nechybí ani taneční parket! - Perfektní poloha pro aktivní život i relax - 5 minut ke sportovnímu středisku České Petrovice (celoročně v provozu) - Přímý vstup do přírody – třeba na pašeráckou stezku kolem pohraničních bunkrů - 10 minut k přehradě Pastviny (koupání, bobová dráha) - 30 minut na Dolní Moravu, lyžařského areálu Říčky nebo na nákupy do Polska Hledáte jedinečné místo s atmosférou a potenciálem? Pozemek i současný dům nabízí skvělou investiční příležitost i kouzelné bydlení v souladu s přírodou. Přijďte se přesvědčit osobně!


