Prodej - dům/vila, 575 m²
Chalupa s pozemkem 10 000m2 – ideální pro podnikání i bydlení
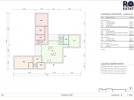
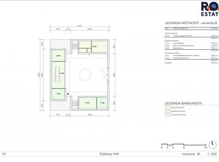
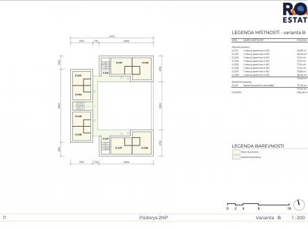
Hledáte klidné bydlení v přírodě, investiční příležitost v turistickém ruchu, nebo rovnou obojí? Pak jste právě našli to pravé místo. Jen 500 metrů od civilizace, na klidném místě obklopeném přírodou, se nachází rodinný dům s téměř 10 000 m² pozemku. Dům s pensionem pohodlně ubytuje až šest rodin, které mají k dispozici dvě plně vybavené kuchyně a několik koupelen. Součástí je také prostorný byt 3+kk s terasou, kde současně bydlí samotní majitelé – ideální pro spojení podnikání s vlastním bydlením. Pozemek dále nabízí stylovou společenskou boudu s barem, výčepem a kapacitou cca 30 míst k sezení - skvělé místo pro oslavy, svatby nebo třeba dětskou hernu. Díky velkorysému prostoru nechybí ani taneční parket! - Perfektní poloha pro aktivní život i relax - 5 minut ke sportovnímu středisku České Petrovice (celoročně v provozu) - Přímý vstup do přírody – třeba na pašeráckou stezku kolem pohraničních bunkrů - 10 minut k přehradě Pastviny (koupání, bobová dráha) - 30 minut na Dolní Moravu, lyžařského areálu Říčky nebo na nákupy do Polska Na pozemku navíc máme vytvořené dvě studie využitelnosti, které jsou projednané na stavebním úřadě i na obci a zobrazují tak skutečnou využitelnost pozemku jak při zachování současné stavby, tak při maximalistické variantě někdy v budoucnu. Hledáte jedinečné místo s atmosférou a potenciálem? Pozemek i současný dům nabízí skvělou investiční příležitost i kouzelné bydlení v souladu s přírodou. Přijďte se přesvědčit osobně!


