Pronájem - kanceláře, 136 m²
Pronájem komerční Kanceláře, 136㎡
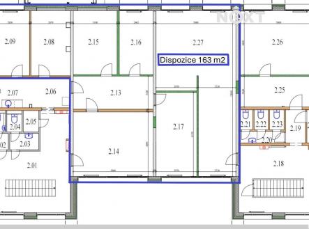
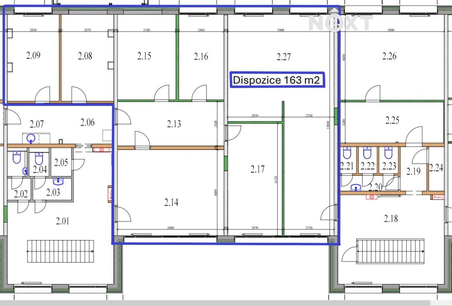
Pronájem kancelářských prostor, které v případě zájmu lze pronajmout jako částečně vybavené, o ploše od 163 m2 do 243 m2, případná úprava dispozice je po dohodě možná. Dále je možnost rozšířit pronájem o skladové plochy (zděné nebo plechové sklady) a parkovací stání na vyasfaltované ploše i nezpevněné ploše, ta je zhutněna jemným štěrkem. Úklid kanceláří je volitelnou zpoplatněnou službou. Paušální částkou se hradí dodávky tepla a vody. Elektřina je měřena podružným elektroměrem a platí se dle skutečné spotřeby. Vybavení kanceláří podle dohody. Neplatí se kauce. Vrátnice objektu pracuje v režimu 24 hodin/7 dní v týdnu, v blízkosti celní úřad, v budově možno využít jídelnu. Nájezd na dálnici D6 ve vzdálenosti 3 km a letiště Václava Havla 17 km. Energetický štítek budovy - třída "G". Pro komunikaci uvádějte evidenční číslo zakázky N115031.


