Prodej - dům/vila, 137 m²
Prodej rodinného domu – ulice Divadelní, Kladno
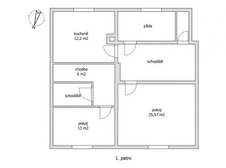
Nabízíme k prodeji rodinný dům v atraktivní lokalitě Kladna – v ulici Divadelní. Nemovitost se nachází v širším centru města, přesto v klidné a příjemné rezidenční zástavbě. V bezprostřední blízkosti je veškerá občanská vybavenost, nákupní centrum OC Centrál, zastávky MHD, autobusové nádraží, školy i další služby. Díky výborné poloze je dům vhodný jak k bydlení, tak jako investice. Dům byl postaven v roce 1928 a je v původním stavu, připravený k rekonstrukci podle individuálních potřeb nového majitele. Celková dispozice je 5+1, v přízemí se nacházejí tři pokoje, koupelna, spíž, chodba a schodiště. V patře jsou další dva pokoje, kuchyně, chodba a půdní prostor. Dům je částečně podsklepený, sklepní prostor má výměru 22 m². V polovině domu byla již instalována plastová okna, zbylá část disponuje původními dřevěnými okny. Střecha je plechová, přibližně 35 let stará, ve funkčním a udržovaném stavu. Komín nebyl v posledních letech používán, ale je možné jej znovu zprovoznit. Vytápění zajišťují plynová topidla typu WAW a elektrické přímotopy v přízemí, v patře je instalován elektrický kotel. Ohřev vody je zajištěn pomocí el. bojleru. Součástí nemovitosti je menší zahrada a garáž v horším technickém stavu. Garáž je možné odstranit a tím rozšířit zahradní část pozemku podle budoucích potřeb. Dům se nachází v atraktivní rezidenční lokalitě s výbornou dostupností a nabízí ideální kombinaci klidného bydlení v centru města s potenciálem pro modernizaci i další využití.


