Prodej - pozemek pro komerční výstavbu, 272 m²
Prodej obchod a služby, 26 m², Kladno, ul. Dubská
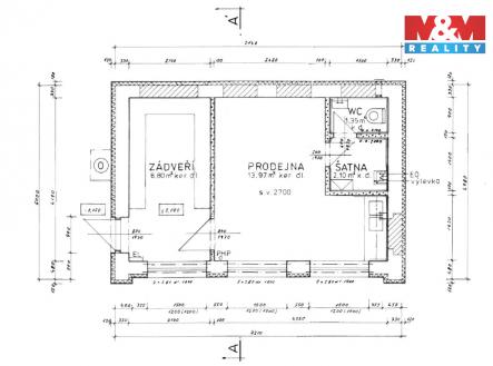
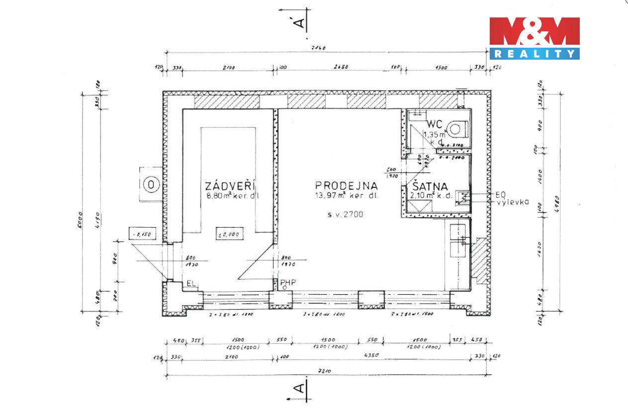
Nabízíme k prodeji jedinečnou komerční nemovitost v rušné části obce Dubí u Kladna. Tato stavba bez čísla popisného i evidenčního se nachází na pozemku o rozloze 272 m² a je ideální pro podnikatelské záměry. Objekt je připraven pro kolaudaci na prodejnu, ale jeho využití je mnohem širší – může sloužit jako prodejna, výrobní prostor, garáž či jiné podnikatelské aktivity dle vašeho nápadu. Nemovitost s užitnou plochou 26 m² je přízemní a její stav je hodnocen jako dobrý. Výborná lokalita v rušné části obce což je ideální pro podnikání. Nepropásněte tuto příležitost a přijďte se přesvědčit o potenciálu této nemovitosti.


