Pronájem - kanceláře, 344 m²
Víceúčelová budova 344 m2 s možností venkovního skladování nebo dostavby skladovací haly v Karviné
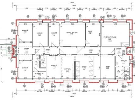
Dlouhodobě pronajmeme víceúčelovou budovu o zastavěné ploše 344 m2 s vlastním parkováním a s možností pronájmu venkovních skladovacích prostor nebo dostavby skladovací haly v Karviné. Přízemní zděná budova s mírně sedlovou střechou po celkové revitalizaci (zateplení, nová okna, fasáda, bezbariérový přístup, …) interně označená jako B4, stojící ve střeženém a udržovaném areálu na adrese Lešetínská 317/12a, Karviná-Staré Město – v Průmyslové zóně MATYAS PARK, ve kterém mimo jiné sídlí prodejce stavebnin DEK. S ohledem na přítomnost firmy DEK, bezproblémový příjezd a parkování pro zákazníky by budova byla mimořádně vhodná pro prodejce elektroinstalačního materiálu, VODO-TOPO nebo podobného zboží. Celý areál je napojen na EZS (vč. chráněného plotu a kamerového systému se záznamem) připojený na PCO a je přístupný v režimu 24/7. Zastavěná plocha budovy dle KN je 344 m2, celková podlahová plocha budovy je 280,4 m2. Světlá výška místností je 2,4 až 3,47 m. Aktuální dispozice: kancelář 12,39 m2, kancelář 17,07 m2, kancelář 12,21 m2, kancelář 15,24 m2, kancelář 12,39 m2, zasedací místnost 29,25 m2, sklad 17,38 m2, sklad 23,80 m2, sklad (výměníková stanice) 31,69 m2, umývárna 15,70 m2, sprchy 20,31 m2, WC s umývárnou 14,65 m2, bezbariérové WC 10,95 m2, úklid 3,23 m2, chodba 8,04 m2, chodba 17,45 m2, zádveří 14,34 m2, zádveří 4,31 m2. Dispozici je možno upravit podle požadavků nájemce (podle vyjádření statika možno odstranit prakticky všechny příčky mimo centrální chodby a vytvořit např. velký sklad nebo prodejnu). K budově je k dispozici min. 10 parkovacích míst uvnitř areálu. K budově je také možno pronajmout venkovní skladovací plochy a v případě zájmu a dlouhodobé smlouvy nabízíme možnost výstavby montované skladovací haly +250 m2 na náklady pronajímatele.

