Pronájem - kanceláře, 71 m²
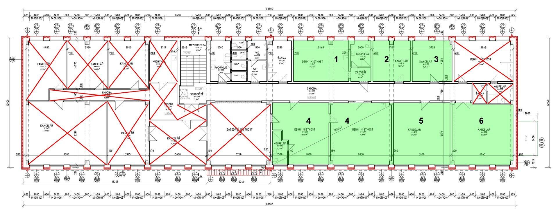
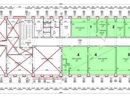
Pronájem klimatizované kanceláře č. 4 o ploše 71 m2 vč. vlastního sociálního zázemí
Hledáte pro své podnikání zázemí, které kombinuje vysoký kancelářský standard s výhodami dobré dopravní dostupnosti a bezproblémového parkování? Dovolujeme si Vám nabídnout pronájem klimatizovaných kanceláří s vlastním parkováním v areálu MATYAS PARK v Karviné Starém Městě. Nabízíme prostory, které se přizpůsobí Vašim potřebám – od jednotlivých kanceláří (15 m2) až po téměř polovinu patra (202 m2). 2 propojené kanceláře č. 4 mají plochu 36,87 m2 a 29,60 m2 + koupelna s WC 4,46 m2 (celkem 70,93 m2). Prostory se nacházejí ve 2. NP budovy po celkové revitalizaci (zateplení, nová okna, fasáda, …). Dispozice je variabilní a umožňuje pronájem samostatných kanceláří se společným zázemím i manažerských apartmánů/kanceláří s vlastním zázemím (tři kanceláře disponují vlastní koupelnou s WC). Možné je i uzavření více kanceláří pod jeden společný vstup. Všechny kanceláře jsou klimatizované. Ke každé kanceláři jsou k dispozici až 2 parkovací místa uvnitř areálu a na parkovišti před areálem. PENB se nyní zpracovává, a proto zatím uvádíme třídu G *). Cena 120,- Kč/m2/měsíc za kanceláře s vlastním zázemím (bez DPH a bez energií). Celý areál je napojen na EZS připojený na PCO (vč. chráněného plotu a kamerového systému se záznamem) a je přístupný v režimu 24/7. Ke kancelářím je možno pronajmout další prostory v přízemí budovy vhodné pro umístění obchodu, skladování nebo drobnou výrobu i venkovní skladovací plochy. V případě dlouhodobé spolupráce nabízí majitel možnost výstavby a následného pronájmu nové montované skladovací haly (+250 m2) v těsné blízkosti nabízených kanceláří. Zavolejte nám, prohlídky jsou možné po předchozí domluvě. PS: Na fotografiích jsou zachyceny i jiné kanceláře.

