Pronájem - kanceláře, 233 m²
Kancelářské plochy od 15 do 233 m2 s parkováním
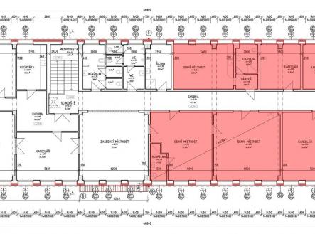
Dlouhodobě pronajmeme kanceláře o výměře 15 až 233 m2 (částečně s vlastním zázemím) s vlastním parkováním a s možností pronájmu venkovních skladovacích prostor nebo dostavby skladovací haly v Karviné. Kanceláře se nacházejí v II. NP dvoupodlažní zděné budovy s plochou střechou po celkové revitalizaci (zateplení, nová okna, fasáda, bezbariérový přístup, …) interně označené jako B3 ve střeženém a udržovaném areálu na adrese Lešetínská 317/12a, Karviná-Staré Město – v Průmyslové zóně MATYAS PARK, ve kterém mimo jiné sídlí prodejce stavebnin DEK. Celý areál je napojen na EZS (vč. chráněného plotu a kamerového systému se záznamem) připojený na PCO a je nájemcům a zákazníkům přístupný v režimu 24/7. K dispozici je až 8 kanceláří o celkové podlahové ploše 233,54 m2, přičemž 4 kanceláře disponují vlastním sociálním zázemím a zbylé 4 kanceláře mají společné zázemí. Kanceláře s vlastním zázemím je možno využít i jako služební byt. Všechny kanceláře jsou klimatizovány. Kanceláře s vlastním zázemím: 1) Kancelář 21,97 m2 + koupelna s WC 5,20 m² + zádveří 2,70 m2. 2) Kancelář 23,45 m2 + koupelna s WC 4,89 m² + šatna 2,90 m2, 3+4) 2 propojené kanceláře 36,87 m2 a 29,60 m2 + koupelna s WC 4,46 m2. Kanceláře se společným zázemím: 1) Kancelář 14,83 m2. 2) Kancelář 15,86 m2. 3) Kancelář 36,26 m2. 4) Kancelář 34,55 m2. Ke každé kanceláři jsou k dispozici až 2 parkovací místa uvnitř areálu a na parkovišti před areálem. Umožní-li to dispozice podlaží, je možno v případě zájmu o větší počet kanceláří upravit prostory a dát více kanceláří pod jeden společný uzávěr. Ke kancelářím je možno pronajmout venkovní skladovací plochy. V případě zájmu a dlouhodobé smlouvy je v areálu možnost výstavby montované skladovací haly o ploše +250 m2 na náklady pronajímatele. Zavolejte nám, prohlídky jsou možné po předchozí domluvě.

