Prodej bytu, 4+1, 119 m²
Byt 4+1 v ul. Kolmá, Karlovy Vary
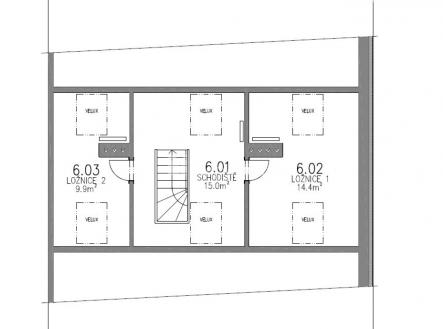
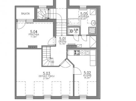
Naše společnost Vám zprostředkuje prodej mezonetové bytové jednotky o velikosti 4+1 v nádherné části Karlových Varů na Vyhlídce, v ul.Kolmá s balkónem a výhledem na Dianu s orientací na jižní stranu s výměrou 119m². Bytová jednotka se nachází ve 4.patře bytového domu a je po právě dokončené celkové rekonstrukci. Podlahová krytina v celém bytě je lamino v kombinaci s dlažbou. Plastová okna a v patře plastová střešní okna Velux. Nové rozvody elektřiny. V kuchyni nově osazená kuchyňská linka včetně plynové varné desky IKEA SKALAN, elektrické trouby IKEA LAGAN, digestoře IKEA UTDRAG NN a vestavěná myčky nádobí IKEA OSTVEDA. Koupelna se skleněným sprchovým koutem a vanou. Samostatné WC vedle koupelny. Obývací místnost je o velikosti 27,6 m² se třemi okny. Ložnice / pracovna o velikosti 11,5 m² je s prostorným balkónem a výhledem do okolí. V patře se nachází dvě místnosti / komory, každá se dvěma střešními okny a schodiště ( také se dvěma střešními okny ) s prosklenou pochozí částí nad spodní chodbou. Vytápění a ohřev vody plynovým kondenzačním kotlem Gepard Condens 18/25 MKV-A . Všude jsou nová otopná tělesa. V bytě je dále zabezpečovací systém (pohybová čidla + dveřní kontakt na vstupních dveřích). Internet přiveden do bytu optickým kabelem CETIN. Vše velmi vkusně zrekonstruováno a připraveno k okamžitému nastěhování. Ev. číslo: 653224.


