Prodej - dům/vila, 90 m²
Prodej usedlosti v Nové Vsi
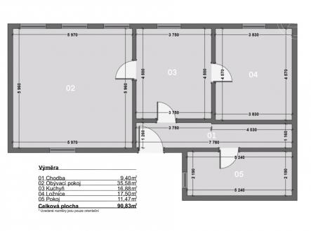
Hledáte místo, které si můžete přetvořit od základu podle vlastních představ? V klidné části obce Nová Ves, nedaleko Kamenice nad Lipou, na vás čeká venkovské stavení s velkým pozemkem o výměře 1467 m², které nabízí spoustu možností a prostoru pro realizaci. Na pozemku se nachází původní venkovský dům s několika místnostmi, které si zachovaly autentickou atmosféru – režné cihlové zdi, stará krbová kamna a další původní detaily. Dům je určen k celkové rekonstrukci a představuje ideální základ pro chalupu, rodinné bydlení nebo zajímavý investiční projekt. Součástí nemovitosti je také dílna a dvě stodoly, přičemž jedna z nich má novou střechu a nová dřevěná vrata. Všechny tyto vedlejší stavby nabízejí široké možnosti využití – od úložných prostor přes dílnu až po ateliér či garáž. Nemovitost je přístupná z obecní komunikace a je napojena na elektřinu, další inženýrské sítě jsou k řešení dle možností a potřeb budoucího majitele. Klidná lokalita, rovinatý pozemek a krásné okolí plné lesů a rybníků dělají z této nabídky ideální příležitost pro ty, kteří hledají únik z města a chtějí si vytvořit domov v srdci přírody. Veškerá občanská vybavenost je dostupná v nedaleké Kamenici nad Lipou. Zaujala vás tato nemovitost s velkým potenciálem? Ráda vám poskytnu více informací a domluvím osobní prohlídku.


