Prodej - obchodní prostor, 710 m²
Prodej obchodního prostoru 466 m2, Mírové náměstí, Kadaň
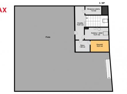
Nabízíme k prodeji patrovou obchodní budovu situovanou v samotném centru města Kadaň. Objekt je udržovaný a ve velmi dobrém technickém stavu, připravený k okamžitému využití bez nutnosti dalších investic. Přízemí : Jedna část je v současné době využívána jako obchodní prostor a sklady, druhá část má samostatný vstup a je dlouhodobě pronajata stabilnímu nájemci – pobočce České spořitelny, což činí tuto nemovitost atraktivní i z investičního hlediska. Patro: Celé patro objektu slouží jako další obchodní prostor, vhodný například pro prodejnu, kanceláře, služby nebo kombinaci podnikatelských aktivit. Podlahy ve všech prostorách tvoří keramická dlažba. Podkroví: V podkroví se nachází dvě samostatné místnosti, které jsou vhodné k využití jako kanceláře nebo další sklady. K dispozici je také velký půdní prostor. Budova je částečně podsklepena. Sklepní prostory jsou suché, čisté a mají klenuté stropy, což zvyšuje jejich atraktivitu pro skladování či další využití. Hlavní výhody nemovitosti: - lukrativní poloha v centru města - udržovaný objekt vhodný k okamžitému užívání bez nutnosti rekonstrukce - výtah a klimatizace - možnost kombinace vlastního podnikání a stabilního nájemního výnosu - rozsáhlé skladové prostory (sklepy i půda) Nemovitost nabízí široké možnosti využití – obchod, služby, kanceláře i investici s pravidelným příjmem. Pro více informací nebo domluvení prohlídky neváhejte kontaktovat makléře nabídky. Výměry jsou uvedeny pouze orientačně. Prodávající si vyhrazuje právo vybrat kupujícího na základě jím zvolených kritérií.


