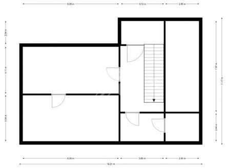
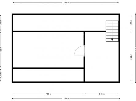
Prodej - dům/vila, 176 m²
Prodej RD 3+kk, pozemek 885 m², Josefův Důl, Jizerské hory
Nabízíme k prodeji dům na krásném pozemku v obci Josefův Důl, okres Jablonec nad Nisou. Podél pozemku teče zregulovaný potok Jedlová, kde žijí pstruzi. Dům nabízí dispozici 3+kk a má nové rozvody vody a elektřiny. Vytápí se přímotopy a čekají ho další úpravy. Přízemí zahrnuje dva pokoje, jeden s kuchyňským koutem a krbovými kamny, koupelnu a kůlnu, která může sloužit jako dílna. V patře se nachází velký pokoj s možností rozšíření. Okolní příroda poskytuje široké možnosti trávení volného času, přímo v obci se nacházejí dva vleky a poblíž je zastávka skibusu. Vlaková zastávka je vzdálena pouhých 100 m od domu, přičemž největší lyžařský areál v Jizerských horách, Tanvaldský Špičák, je jen dvě stanice vlakem. Pro milovníky běžek je k dispozici celkem 90 km tratí, a v létě jsou zde ideální podmínky pro cykloturistiku a vycházky po značených trasách. Nemovitost je v osobním vlastnictví a lze ji tedy financovat hypotečním úvěrem, který vám zdarma pomůžeme vyřídit za nejvýhodnějších podmínek na trhu. PENB nebyl dodán, proto uvádíme třídu G. Přijeďte se podívat, rádi vám vše ukážeme!


