Prodej - jiné, 500 m²
K prodeji, zrekonstruovaný komerční objekt s občanským využitím, Jindřichův Hradec
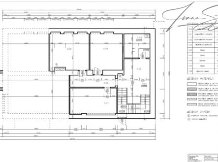
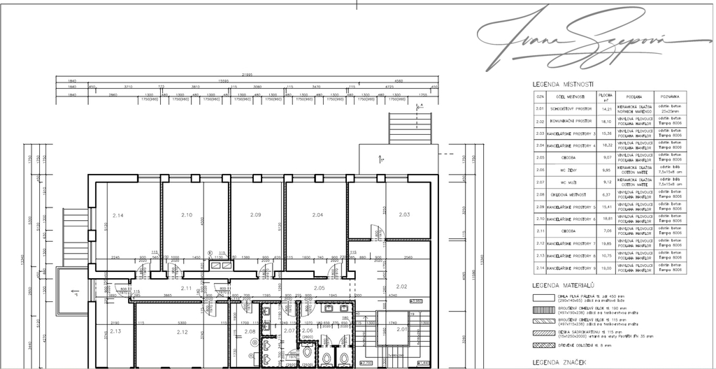
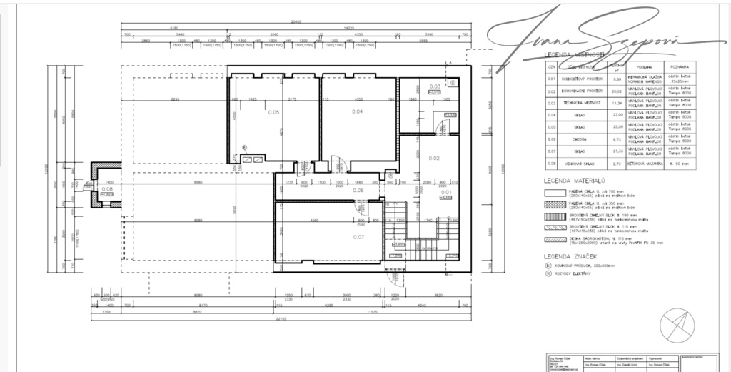
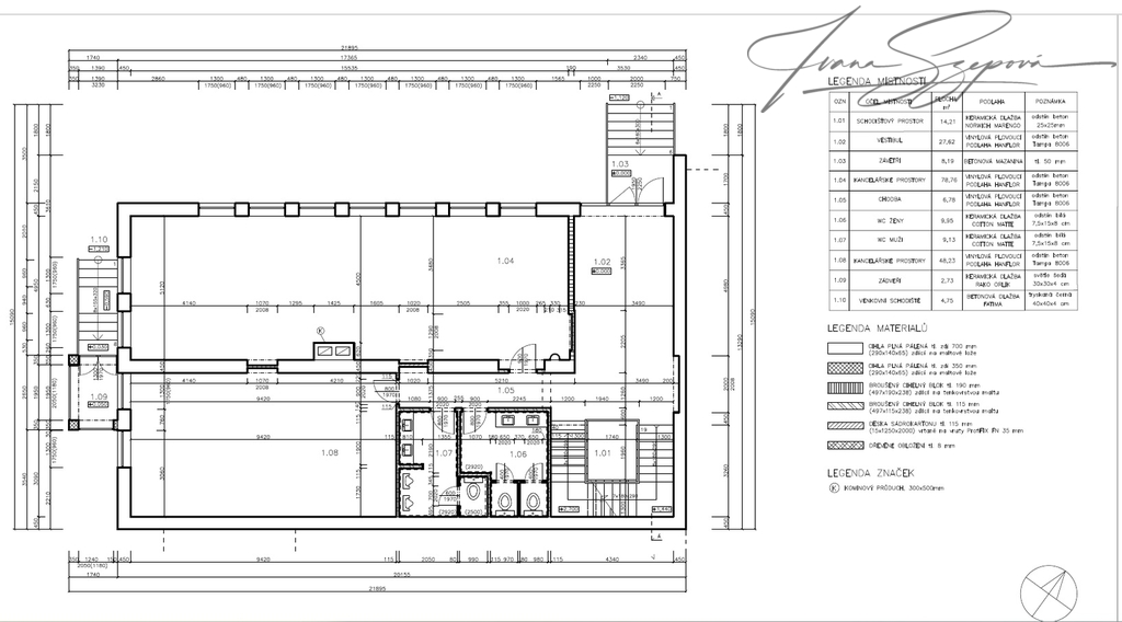
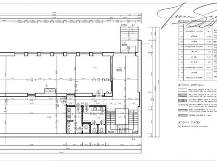
K prodeji, zrekonstruovaný komerční objekt s občanským využitím o celkové podlahové ploše 541 m2, na adrese Stará cesta č.p. 728, Jindřichův Hradec. Objekt je katastrálně rozdělen a prodává se jako samostatná část nemovitosti. Druhou část objektu vlastní jiný majitel, který zde buduje dlouhodobou zubní ordinaci. Dle platného územního plánu města Jindřichův Hradec je objekt veden v ploše občanského vybavení, která umožňuje využití pro zdravotnické služby, administrativu, kanceláře a další nerušící provozy, v souladu s charakterem okolní zástavby. Budova je rozdělena do tří podlaží (1. PP, 1. NP a 2. NP) s užitnou plochou cca 500 m2 a byla nově zrekonstruována v roce 2025. Jedná se o bývalou vodárnu se železobetonovou konstrukcí. Dispoziční řešení umožňuje variabilní využití, jak pro vlastní provoz, tak pro kombinaci více provozů či investiční záměr. Více informací v projektové dokumentaci mezi fotografiemi. Mezi fotografiemi je rovněž zařazena vizualizace, která znázorňuje finální podobu celého objektu po celkové rekonstrukci a sjednocení fasády. Díky svému technickému řešení je objekt vhodný zejména pro zdravotnická zařízení, ordinace, kliniky, rehabilitační centra, administrativu nebo jiné nerušící provozy. Významnou výhodou je pevná železobetonová konstrukce původní vodárenské stavby, která zajišťuje dlouhodobou stabilitu objektu. Nemovitost se nachází v zavedené lokalitě služeb v rámci města Jindřichův Hradec s dobrou dopravní dostupností. Více informací Vám poskytne realitní makléřka Ivana Szepová.


