Prodej - dům/vila, 277 m²
Prodej domu 277 m², pozemek 598 m²
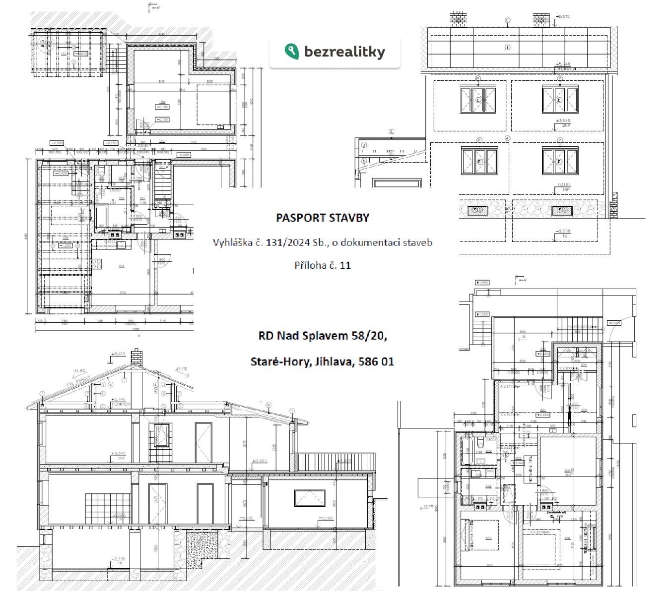
Rodinný dům se dvěma samostatnými bytovými jednotkami v klidné části Jihlavy – Staré Hory. Vhodné pro vícegenerační bydlení v obou bytech nebo pro kombinaci bydlení + investice. Bytová jednotka 5+kk ve 2NP má užitnou plochu 88m2 + terasa 13m2. Bytová jednotka 3+kk v 1NP má užitnou plochu 61m2 + dvůr s pergolou 20m2. Tyto jednotky mají každá samostatný venkovní vstup. V roce 2017 prošly částečnou modernizací. Celková plocha pro bydlení je rovna 149m2. Nebytové prostory (2 garáže, sklep, podkroví) mají užitnou plochu 128m2. Po stavebních úpravách je možné například podkroví upravit na bydlení. Na dům o zastavěné ploše 166m2 navazuje zahrada o ploše 432m2. Celková plocha pozemku je 598m2. Na pozemku lze zaparkovat celkem 3 vozidla. Jedná se o rohový objekt s dostatečnou kapacitou veřejných parkovacích stání. Stavba je kompletně zateplena. Okna a dveře jsou plastová. Vytápění obou bytových jednotek je řešeno pomocí plynnového kondenzačního kotle. Na střeše domu se nachází fotovoltaické panely. Energetická třída F - velmi nehospodárná. Pomocí vhodných opatření, definovaných v PENB, lze dosáhnout hodnoty B - velmi úsporná. PENB poskytneme na vyžádání. Skutečný stav je uveden v projektové dokumentaci pasportu stavby (digitální i tištěné). Objekt není zatížen zástavou ani jiným břemenem, a tak jej lze financovat pomocí hypotečního úvěru. Právní služby související s přepisem nemovitosti jsou zajištěny. Doporučujeme si nemovitost prohlédnout. Rádi vám sdělíme bližší informace a zodpovíme vaše dotazy. Cena k jednání. Tato nemovitost je určena výhradně přímým zájemcům o koupi. Na inzerát můžete také reagovat přímo na webu Bezrealitky.


