Pronájem - skladovací prostor, 2 662 m²
Pronájem skladu, výrobních prostor 2662 m², Jičín
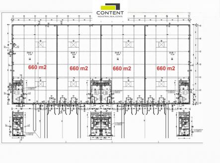
Pronájem skladu, výrobních prostor 2662 m² Jičín. V exkluzivním zastoupení majitele a bez provize nabízíme novostavbu skladu nebo výrobních prostor o výměře až 2662 m², umístěných v nově vznikajícím průmyslovo-retailovém areálu Ptáček: topení-voda-plyn a Koupelny Ptáček. Areál je přímo viditelný ze silnice I/35 s dobrým napojením na dálnice D10, D11. - k dispozici dohodou do 10 měsíců, - jednotky od 660 - 2662 m², - strategická poloha s vynikající dostupností v blízkosti důležitých dopravních tahů, - prostory ve stavu Shell & Core, - možnost vlastní konfigurace sociálního zázemí a kanceláří, - světlá výška 8,5 m, - nosnost podlahy minimálně 5 t/m², - hydraulické rampy a přímé vjezdy, - vytápěné a zateplené prostory, elektřina, - dostatečné parkovací a manipulační plochy v rámci areálu, - další úpravy možné dle přání a potřeb konkrétního klienta. Cena nájmu za skladové plochy je EUR 7/m²/měsíc, kanceláře a sociální zázemí EUR 10/m²/měsíc + služby. Fotografie jsou pouze ilustrativní. Pro více informací kontaktujte makléře, rádi zodpovíme Vaše dotazy.


