Prodej bytu, 2+kk, 63 m²
Prodej byt 2+kk, 48 m², Ježov
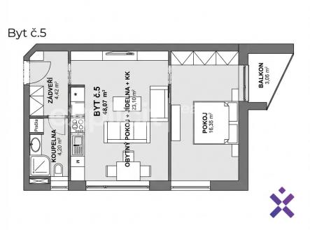
Richard Bábík & Explicit Reality vám exkluzivně nabízí ke koupi bytovou jednotku v novostavbě developerského projektu Vávrův mlýn v Ježově. Jedná se o byt 2+kk o výměře 48 m² v přízemí domu, je bezbariérový stejně jako přístup do sklepních prostor. K bytu náleží sklepní kóje o velikosti 12 m² a jedno parkovací místo přímo před domem. Byt je orientován na severozápad, balkon nacházející se v ložnici je směr jihozápad. Bytový dům zahrnuje dvanáct jednotek a spadá do energetické třídy B. Vynikající tepelně-izolační vlastnosti zajišťují kvalitní české keramické pálené cihly Porotherm 38T Profi. K vysokému komfortu přispívají plastová okna s pětikomorovým profilem a trojskly. Vytápění zajišťuje plynový kondenzační kotel s radiátory vybavenými termostatickými ventily. Na ohřev teplé vody slouží v každém bytě elektrický bojler o objemu 120 litrů. Vstupní dveře do bytu jsou bezpečnostní s protipožární ochranou od společnosti HT. Interiérové vybavení zahrnuje vinylové podlahy, dlažbu s obkladem v koupelně, závěsné WC Geberit, sanitární keramiku a sprchový kout. Byt je nabízen bez kuchyňské linky. Při včasné rezervaci je možná změna barevného odstínu koupelny. Výstavba právě probíhá, s plánovaným dokončením konec roku 2025. Majitel navíc nabízí možnost výhodného financování při koupi tohoto bytu, s úrokovou sazbou od 3,6 % p.a., fixace na 5 let. Ježov leží 7 km severovýchodně od Kyjova a je součástí mikroregionu Podchřibí. Okolní Chřiby s jejich kopci a lesy nabízejí nespočet možností pro turistiku a cykloturistiku. Obec disponuje dobrou občanskou vybaveností, včetně základní školy, mateřské školy, ordinací praktického lékaře, pošty, obchodu a hostince. Telefonní síť zajišťují operátoři O2, T-Mobile a Vodafone, k dispozici je také bezdrátový internet od dvou poskytovatelů. Pro sjednání prohlídky mě neváhejte kontaktovat. Rád se s vámi setkám. Richard Bábík & Explicit Reality


