Prodej - dům/vila, 483 m²
Rodinný dům v klidné části Jenišova, Karlovy Vary.
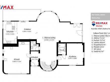
Představujeme vám jedinečný rodinný dům v klidné části Jenišova, který je jako stvořený pro velkou rodinu hledající prostor, soukromí a pohodlí. Tento dům vás uchvátí svou atmosférou, nádhernými výhledy na Karlovy Vary a okolní hory s pečlivě promyšleným uspořádáním, které splňuje všechny potřeby moderní rodiny. Vstupte do prostorného obývacího prostoru v přízemí, kde vás přivítá teplo domova. Velká okna propouštějí spoustu denního světla a nabízejí dechberoucí výhled na krajinu, který vás okamžitě okouzlí. Jídelní část zve k rodinným obědům a večeřím, zatímco relaxační zóna je ideálním místem pro odpočinek s šálkem kávy nebo posezení s přáteli. Hostinský pokoj s vlastní koupelnou je připraven poskytnout vašim návštěvám maximální pohodlí. Garáž, do které lze pohodlně vstoupit přímo z domu, nabízí velký prostor pro vaše auto, a praktické místo pro uložení věcí. V nultém podlaží na vás čeká další obývací prostor, který lze proměnit v domácí kino nebo hernu. Dvě prostorné ložnice, každá se svou koupelnou, poskytují členům rodiny vlastní útočiště. Praktické technické místnosti se postarají o všechny potřeby domácnosti a umožní udržet dům vždy upravený. První patro je soukromou zónou domu. Hlavní ložnice s vlastní koupelnou a šatnou vám zajistí maximální komfort. Z prostorného balkonu, který je přístupný z hlavní obývací části, si můžete vychutnat klidné chvíle s výhledem na Karlovy Vary a hory. Každý detail tohoto domu byl promyšlen tak, aby z něj vyzařovala elegance a funkčnost. Celý interiér propojuje honosné mramorové schodiště, jehož elegantní linie a řecká kupole nad ním dodávají domu jedinečnou atmosféru a pocit vzdušnosti. Tento domov se nachází v prestižní a klidné části Jenišova, stranou od ostatních domů, tím zaručuje absolutní soukromí. Zároveň je jen pár minut od hypermarketů Globus a Makro, což zajišťuje pohodlí každodenního života. Tento dům není jen nemovitost – je to místo, kde můžete budovat rodinné vzpomínky, cítit se bezpečně a užívat si každý den. Přijďte si ho prohlédnout a nechte se unést jeho kouzlem. Prodávající si vyhrazuje právo vybrat kupujícího na základě jím zvolených kritérií.

