Prodej bytu, 3+kk, 93 m²
Prodej bytu 3+kk 93 m², Jedovnice
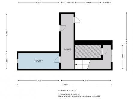
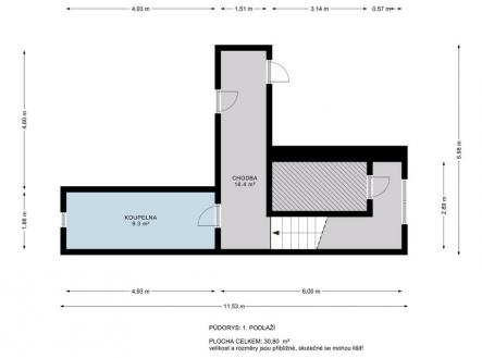
Rádi bychom Vám nabídli prostorný zrekonstruovaný byt 3+kk s plochou (93,1 m²) v historickém domě se zahradou v ulici Legionářská v Jedovnicích. Dům si i po zdařilé rekonstrukci zachoval svůj jedinečný charakter i atmosféru. Byt je umístěn ve 3. nadzemním podlaží tohoto domu, ve kterém jsou pouze čtyři bytové jednotky. Díky tomu nabízí bydlení komorní a klidnou atmosféru. Dominantou bytu je prostorný obývací pokoj s kuchyňským koutem. Interiér je vybaven prostornou kuchyňskou linkou se spotřebiči. Byt působí vzdušně a otevřeně a ze všech místností jsou krásné výhledy do okolí. Podlahy v obytných místnostech jsou plovoucí a dlažby jsou položeny v koupelně a na chodbě. V rámci nedávné revitalizace byla v bytě instalována dřevěná eurookna. V bytě je komfortní podlahové vytápění, které zajišťuje příjemné a zároveň úsporné bydlení. Velkým benefitem k bytu je společná zahrada o výměře více jak 1 200 m², která je mezi jednotlivé vlastníky rozdělena dohodou k užívání. K domu náleží také velká garáž s elektricky ovládanými vraty, kde si vlastníci rovněž vymezili své prostory. Orientace obývacího pokoje je severovýchodní, ložnice a dětský pokoj jsou orientovány na jihozápad. Dům má velmi dobrou polohu – v docházkové vzdálenosti je jak dětské hřiště, tak i centrum městyse, autobusová zastávka i okolní příroda. V blízkosti se nachází lesní cesty, trailové trasy i rybníky. Jedovnice nabízejí výbornou občanskou vybavenost – mateřskou, základní, střední i uměleckou školu, lékaře obchody, restaurace, kavárny i sportoviště. V případě vyššího počtu zájemců může být nemovitost prodána nejvýhodnější nabídce. Tak co na to říkáte? Chcete se na byt podívat osobně? Potom se se mnou neváhejte spojit.


