Prodej - komerční objekt, jiný, 250 m²
Prodej komerční Ostatní, 325㎡
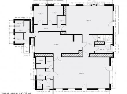
Prodej domu dlouhodobě provozovaného jako restaurace v druhém nadzemním podlaží a soukromá posilovna se sklady v přízemí v centru města Jaroměř. Dům má užitnou plochu ve dvou patrech velkorysých 325 m2. Přízemí domu může být využito jako zázemí pro obchod nebo restauraci. V druhém nadzemním podlaží se nachází dva společenské sály, funkční kuchyň, sociální zařízení a sklady. Z půdy až do přízemí vede funkční výtah na zboží. Vytápění zde zajištují dva plynové kotle, v sociálním zařízení částečně pevné přímotopy, s možností připojení krbových kamen. Parkování je možné před a pod domem na obecním pozemku. S výhodným financováním rádi pomůžeme. Doporučuji prohlídku. Pro komunikaci uvádějte evidenční číslo zakázky N115254.


