Prodej - chata/rekreační objekt, 144 m²
Prodej rodinného domu 144 m², bazén, Hrobce
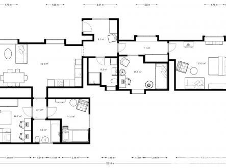
Pokud sníte o místě, kde panuje klid, pohoda a harmonie, kde nemusíte nic rekonstruovat a chcete se jen nastěhovat, pak Vás určitě zaujme tato nabídka. Představujeme Vám na prodej dům o dispozici 5+kk s obytnou plochou cca 122,5 m2 na pozemku 1607 m2 v obci Hrobce, okr. Litoměřice s nádherným výhledem. Dům je cihlový, zateplený a v roce 2014 zde proběhla kompletní rekonstrukce. Nové rozvody, střešní krytina je betonová, okna plastová, chytrá domácnost a příprava zabezpečovacího zařízení. V roce 2015 byla přistavena nová část domu – dva pokoje a koupelna. Vytápění domu je plynovým kotlem, který byl nově vyměněný v roce 2023, vodovod a kanalizace je veřejná. Na dvorku je místo pro dvě parkovací stání. Dispozice domu je znázorněná v půdorysu a celý dům si můžete projít prohlídkou v matterportu. Zahrada poskytuje dostatek soukromí a relax. V tomto roce byl vybudovaný bazén 5,25 x 3,2 x 1,50 , v roce 2024 byla postavena pergola, okap sveden do podzemní plastové nádrže ke sběru vody, natažena elektřina a voda, položena nová dlažba. Na pozemku se dále nachází dětské hřiště, zahradní posezení, dřevěný zahradní domek na nářadí a původní zrekonstruovaná budova cca 20 m2, kde najdete letní kuchyň a místnost-ložnice pro návštěvy. V obci Hrobce se nachází školka, knihovna, dětské hřiště a Pohádková cesta, která je hned pod domem ( stezka vedoucí do Hrobců lemovaná postavami zvířat a naučnými kvízy ). Po dohodě je možné nechat vybavení a můžete se stěhovat. Prohlídka domu je možná po předchozí domluvě a pro jakékoliv doplňující informace nás neváhejte kontaktovat a budeme se těšit na prohlídce.


