Prodej - dům/vila, 398 m²
Prodej domu 398 m², pozemek 1.153 m²
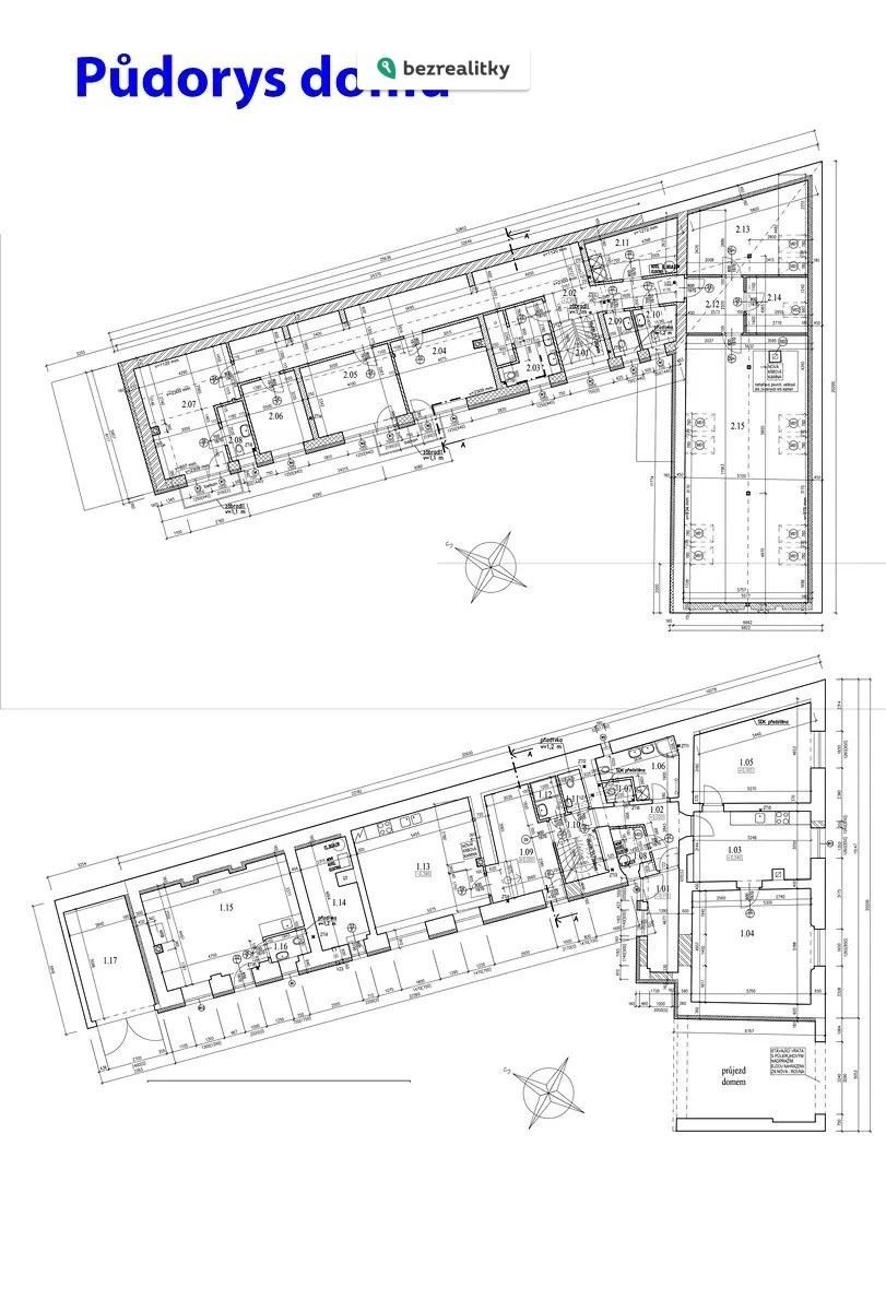
Prodej rodinného domu s velkým pozemkem v srdci přírody – klid, prostor, soukromí, skvělá dostupnost Nabízíme k prodeji prostorný dům v klidné části obce Hředle nedaleko Zdic. Lokalita je součástí CHKO Křivoklátsko, oblíbené u turistů a milovníků cyklistiky. Výborná dopravní dostupnost – 4 km od dálnice D5, autem 20 minut na okraj Prahy a 25 minut na okraj Plzně. Občanská vybavenost a doprava: • škola a školka v přilehlé obci Zdice (4 km) • autobusové spojení do Zdic i do Prahy (PID) • ze Zdic vlakové spojení směr Praha, Plzeň, České Budějovice • přímo v obci obchod a restaurace, v obci Žebrák (6 km) COOP 24/7 Nemovitost má tvar L a je částečně zrekonstruována – přední část prošla rozsáhlou rekonstrukcí: nová střecha, krov, zateplení, nové rozvody vody a elektřiny, betonové podlahy a stropy, plastová okna, plovoucí podlahy. Nemovitost lze vytápět tuhými palivy i elektrokotlem. Celkem bylo zrekonstruováno přes 200 m² obytné plochy. Dispozice: • Přízemí: bytová jednotka 2+1, obývací pokoj, kuchyň, ložnice, koupelna s WC, samostatná toaleta – v současné době pronajímáno • Patro: bytová jednotka 3+kk, obývací pokoj s kuchyní, prostorná ložnice, pokoj, dvě koupelny s WC, prádelna. Obě patra mají samostatný vchod, lze je ale propojit v jednu velkou bytovou jednotku. Další část domu je určena k rekonstrukci, což nabízí skvělou možnost přizpůsobit si nemovitost podle vlastních představ, nebo ji rozšířit. K dispozici jsou již vypracované projekty (dům i stodola). Nemovitost disponuje prostornou zahradou, která skýtá dostatek soukromí. Celkové parametry: • obytná plocha: 398 m² • pozemek: 1 153 m² • garáž • stodola v zadní části pozemku: 100 m² Tento dům je vhodný jak pro vícegenerační bydlení, tak i pro investiční záměr – například pronájem dvou samostatných bytů nebo vybudování penzionu v turisticky atraktivní oblasti. Tato nemovitost je určena výhradně přímým zájemcům o koupi. Na inzerát můžete také reagovat přímo na webu Bezrealitky: https://www.bezrealitky.cz/nemovitosti-byty-domy/983450-nabidka-prodej-domu-hredle


