Prodej - hotel, 3 199 m²
Prodej penzionu, ubytování Hranice u Nových Hradů
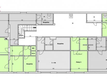
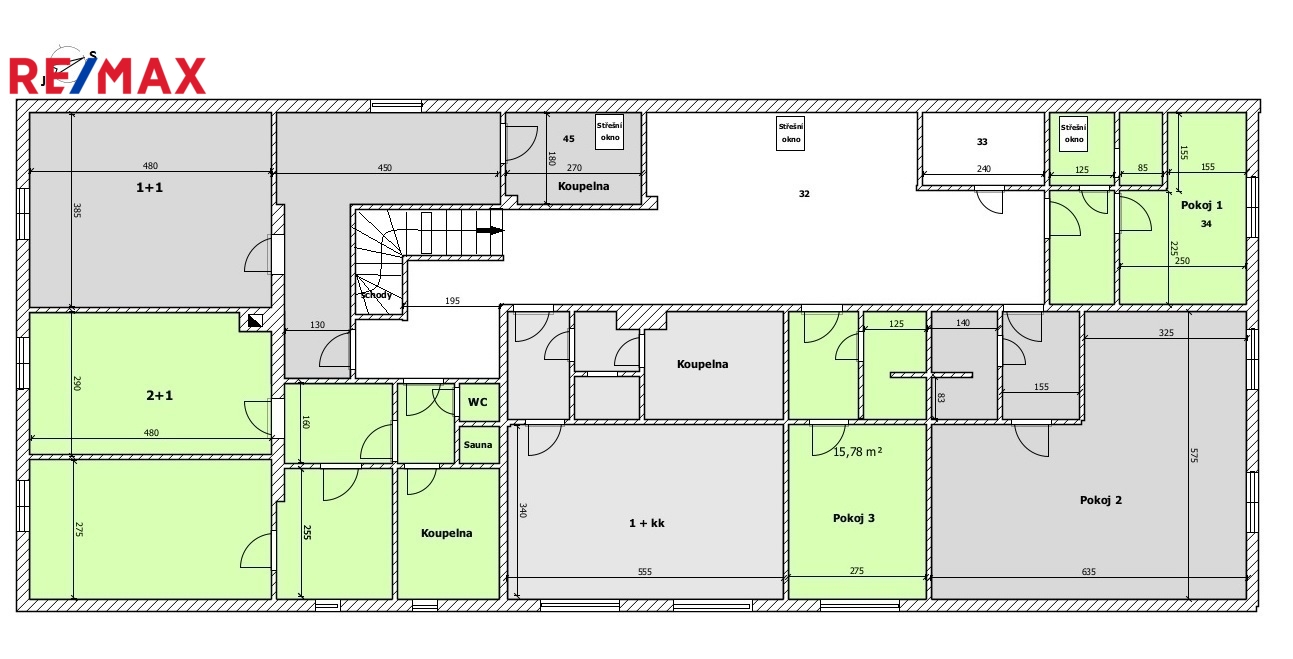
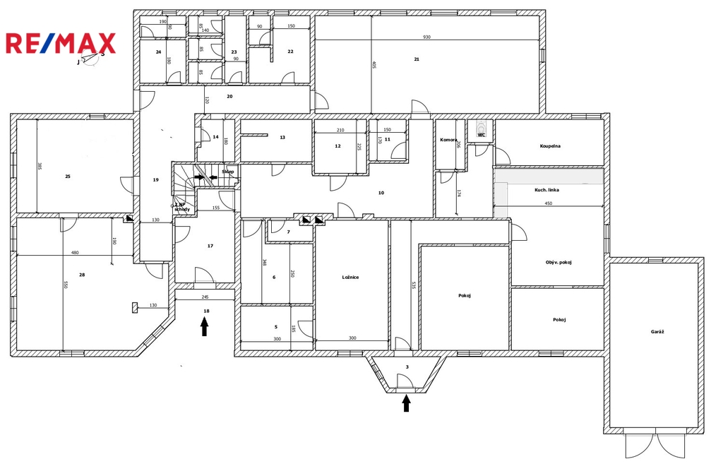
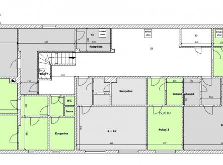
Exkluzivně nabízíme k prodeji objekt v obci Hranice u Nových Hradů. Tento dům sloužil v minulosti jako hostinec, cca před 22 lety byl opraven a přestavěn. Dnes slouží objekt k trvalému bydlení (bytová jednotka o dispozici 3+1). Část domu je využívána ke komerčnímu pronájmu. Nachází se zde 3 bytové k dlouhodobému pronájmu a 3 bytové jednotky ke krátkodobému pronájmu přes cestovatelské portály. K nemovitosti náleží rozlehlý pozemek o rozloze 2.783 m2, kde je k dispozici přírodní jezírko- rybník, velký výběh pro chov slepic, altánek, pergola, udírna a garáž či dílna. Je zde dostatek prostoru pro pěstování plodin, či výstavbu dětského hřiště nebo bazénu. Rozloha pozemku nabízí v tomto směru široké využití. Dům má 2 podlaží a dispozici 400 m2. 1. patro V přízemí, vedle hlavního vchodu se nachází společenská místnost, která dříve sloužila jako restaurace. Některé původní prvky tohoto využití zde byly zachovány a tak je možné takový provoz obnovit či využít k různým společenským akcím a teambuildingům. Dominantou této místnosti je krb, který v chladnějších měsících navozuje jak teplo, tak příjemnou atmosféru. K dobré obslužnosti napomáhá menší, částečně vybavená kuchyň, která na tuto místnost navazuje. Dále jsou v přízemí oddělené toalety a další společenská místnost - klubovna, kde je dominantou velký pingpongový stůl a vstup na rozlehlou venkovní terasu, kde je dostatek prostoru pro společenské posezení či relax. Nachází se zde i sklep se vstupem na zahradu, který je možno využít jako kolárnu a dále je zde kotelna - dům je vytápěn kotlem na tuhá paliva. Samostatný vchod vedle hlavního vstupu má v přízemí i bytová jednotka, která je momentálně využívaná k trvalému bydlení. Tato jednotka má dispozici 3+1. 2.patro Ve druhém patře se nachází 3 bytové jednotky, 2x 1+kk a 2+kk - tyto byty momentálně obývají trvalí nájemníci. Dále jsou zde 3 samostatné pokoje jako ubytování pro hosty, určené ke krátkodobým pobytům, provozované přes portál Airbnb. Tyto pokoje jsou vybaveny vlastní koupelnou a manželskou postelí či samostatnými lůžky. Tyto prostory propojuje společná místnost, která je v tuto chvíli zaměřená na dětské aktivity - postýlka, přebalovací pult, hračky, knihovna a je zde i menší úložný prostor - komora. Výhodou tohoto objektu je jeho široká možnost využití a investiční příležitost - ať už jako stávající ubytovací zařízení nebo i jako rekreační objekt pro vícečlennou rodinu či blízké a známé. Je možnost provoz rozšířit o pohostinství, restauraci, teambuildingové účely, firemní večírky. Nebo i objekt využít jako firemní prostor - výrobnu, sklad, dílnu a ubytovací zázemí pro zaměstnance. Lokalita je ideální svou dobrou dopravní obslužností, v blízkosti jsou Nové Hrady, Suchdol nad Lužnicí i České Velenice, zároveň je v okolí klid a malebná příroda CHKO Třeboňska. Místo si najde hojné turistické využití díky dostatku cyklostezek. V dojezdové vzdálenosti jsou také oblíbené Novohradské hory. V případě zájmu nás neváhejte kontaktovat.


