Pronájem - kanceláře, 250 m²
Pronájem, kanceláře, 250m2, Na Brně, Hradec Králové
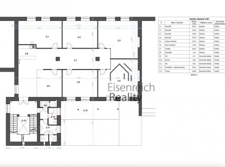
Nabízíme k pronájmu prostorné kancelářské prostory o celkové výměře 250 m2 ve 2. patře administrativní budovy. Dispozice: 5 samostatných kanceláří vhodných pro menší i větší pracovní týmy zařízená kuchyňka přímo v prostorách toalety a sprcha k dispozici na chodbě Další výhody: v ceně nájemného jsou zahrnuta 2 parkovací stání snadná dostupnost MHD i autem reprezentativní prostředí vhodné pro sídlo firmy Prostory jsou ihned k dispozici. V případě dotazů mě kontaktujte.


