Pronájem bytu, 1+1, 43 m²
Pronájem bytu 1+1 v Hradci Králové, ul. Čajkovského
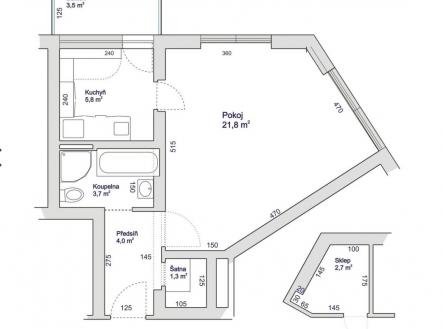
K pronájmu byt 1+1 o užitné ploše 43 m² na Novým Hradci blízkosti nákupních center do centra Hradce Králové se pohodlně dostanete MHD. Byt se nachází ve 3. patře budovy a je připraven k okamžitému nastěhování. Zároveň součástí pronájmu jsou společné prostory a sklepní kóje. Vše se nachází v atraktivní lokalitě s velmi bohatou občanskou vybaveností. Pokud hledáte pohodlné bydlení blízko centra města, neváhejte nás kontaktovat pro více informací nebo domluvení osobní prohlídky. Rezervujte čas prohlídek po telefonu s makléřem.


