Prodej - pozemek pro bydlení, 6 364 m²
Prodej, pozemek, 6.364 m2, K Labi, Hradec Králové
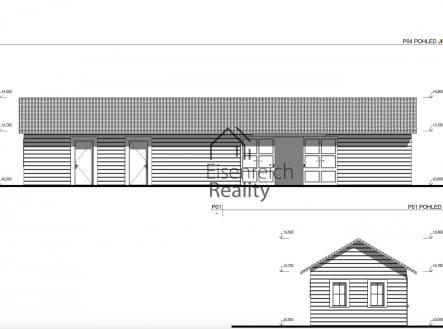
Prodej pozemku 6.364 m Hradec Králové, Třebeš Nabízíme k prodeji prostorný pozemek o celkové výměře 6.364 m v klidné části Hradce Králové Třebeš, v blízkosti slepého ramene řeky. Místo poskytuje výjimečné soukromí, přírodní prostředí a přitom rychlou dostupnost do centra města. Součástí je stavební povolení a projektová dokumentace na výstavbu rekreačního nebo hospodářského objektu (např. zázemí pro koně, sklady, dílnu, drobnou farmu). Stavět lze na ploše 2.130 m, zbytek pozemku nabízí prostor pro zahradu, výběhy, sady či další využití dle vašeho záměru. Inženýrské sítě a vybavení: elektřina na hranici pozemku (ve sloupku), schválená studna, jímka. Lokalita je ideální pro ty, kdo hledají kombinaci klidného venkova a městské dostupnosti příroda na dosah, centrum Hradce Králové jen pár minut jízdy. Pro více informací kontaktujte realitního makléře.


