Prodej bytu, 3+kk, 78 m²
Prodej bytu 3+kk v Hradci Králové Ve Stromovce
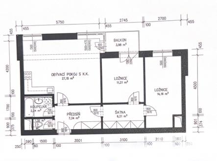
Nabízíme k prodeji moderní a velmi světlý byt o dispozici 3+kk a podlahové ploše 70 m², který se nachází ve vyhledávané a klidné lokalitě Ve Stromovce v Hradci Králové. Součástí bytu je balkon (3 m²) s příjemným výhledem do zeleně a sklepní kóje (3 m²), která poskytuje dostatek úložného prostoru. Byt je orientovaný na jižní stranu, díky čemuž je po celý den krásně prosvětlený. Dispozice nabízí prostorný obývací pokoj s kuchyňským koutem, dvě ložnice, koupelnu, samostatné WC a předsíň s úložnými prostory. Výstavba domu proběhla v roce 2008, objekt je ve velmi dobrém technickém stavu a působí moderním, udržovaným dojmem. Lokalita Třebeš patří mezi nejklidnější a zároveň nejoblíbenější části Hradce Králové – v okolí najdete školy, školky, obchody, restaurace, zastávky MHD, nebo cyklostezku podél Labe ideální pro procházky či sport. Benefitem je i možnost přikoupení privátního parkovacího stání přímo před domem, které není součástí prodeje. Byt je ideální jak pro rodinné bydlení, tak i jako investice díky atraktivní poloze a skvělé dostupnosti do centra města. V případě jakýchkoliv dotazů mě neváhejte kontaktovat. Majitel si vyhrazuje právo prodat byt nejvyšší nabídce.


