Prodej bytu, 1+kk, 42 m²
Prodej bytu 1+kk, 42,1 m2, Pražská třída, Hradec Králové - Kukleny
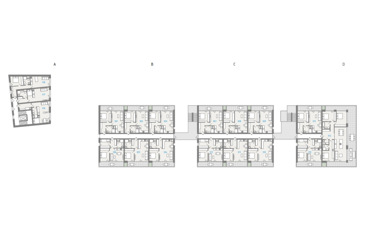
Nový byt 1+kk v moderní rezidenci v Hradci Králové Nabízíme k prodeji zcela nový byt 1+kk v nově realizovaném developerského projektu Rezidence Pra žská 84, který vzniká v atraktivní části Hradce Králové. Velikost bytu je 42,1 m2, byt je orientovaný na jih a nachází se ve 3.nadzemním podlaží. Projekt je výsledkem práce renomovaného ateliéru Žárovka Architekti a celkem nabízí 52 bytových jednotek. Od běžného projektu se odlišuje především nízkopodlažní zástavbou, menším počtem bytů v jednotlivých domech a uzavřeným, klidným konceptem bydlení. Soukromí, bezpečí a technologie budoucnosti Celá rezidence je navržena s důrazem na komfort, bezpečí a dlouhodobou udržitelnost. Obyvatelé mají k dispozici: - vlastní fotovoltaickou elektrárnu s bateriovým úložištěm, - sprinklerový systém jako aktivní protipožární ochranu, - přípravu pro dobíjení elektromobilů u parkovacích stání. Díky těmto prvkům projekt nabízí nejen moderní bydlení, ale i nižší provozní náklady a vyšší míru bezpečí. Lokalita, která funguje Poloha projektu umožňuje rychlé a pohodlné spojení jak do centra města, tak mimo Hradec Králové. MHD je dostupná 1 minutu chůze, nájezd na dálnici D11 je vzdálený přibližně 2 minuty jízdy, do Prahy (Černý Most) se dostanete zhruba za hodinu autem. V bezprostředním okolí najdete lékaře, školy, školky i nákupní centrum Aupark, což dělá z lokality ideální místo pro každodenní život. Možnost klientských úprav Do určité fáze výstavby je možné: upravit standardy interiéru, u vybraných bytů měnit dispozici přizpůsobit bydlení vlastním představám ještě před dokončením. Parkování a společné prostory Veškerá parkovací stání jsou řešena v krytých prostorech pod budovou, takže okolí domů zůstává klidné, čisté a bez rušivých prvků. Na projekt navazuje komunitní zahrada, která vytváří přirozený prostor pro setkávání rezidentů i relax. Kvalitní standard bydlení Byty jsou navrženy s důrazem na funkční dispozice a nadčasový design. Standard zahrnuje kvalitní podlahy, dveře a obklady v souladu s aktuálními trendy, přičemž je možné zvolit i prémiové materiály. Financování bez starostí V případě potřeby vám zajistíme kompletní hypoteční servis a výhodné podmínky financování napříč bankovním trhem - od prvního návrhu až po podpis úvěrové smlouvy.


