Prodej bytu, 3+kk, 90 m²
Prodej byt 3+kk, 90㎡
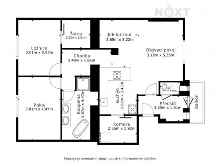
Dobrý den, v exkluzivním zastoupení Vám nabízím k prodeji prostorný byt o dispozici 3+kk a výměře 90 m², který se nachází v samém centru Hradce Králové v prvorepublikovém domě s charakterem a atmosférou. Jakmile vstoupíte do bytu, ocitnete se v jeho největší a hlavní části – komfortním obývacím pokoji propojeném s moderní kuchyní. Kuchyň je plně vybavená (vestavné spotřebiče), designově čistá a prakticky řešená. Přímo za ní se nachází samostatná místnost s úložným prostorem, kde je umístěna pračka se sušičkou, které zůstávají součástí prodeje. V bytě zůstává většina stávajícího nábytku, což umožňuje okamžité bydlení bez dalších nákladných investic. Druhá část bytu nabízí ložnici se samostatnou šatnou, další pokoj využitelný jako dětský pokoj či pracovnu a luxusně provedenou koupelnu. V ložnici i obývacím pokoji je instalována klimatizace, která zajišťuje vysoký komfort po celý rok. Byt prošel kompletní rekonstrukcí v roce 2022, při které byl kladen důraz na kvalitu materiálů, funkčnost a nadčasový vzhled. K bytu náleží i sklepní kóje, která nabízí další úložný prostor. Lokalita v centru města nabízí veškerou občanskou vybavenost v pěší dostupnosti – obchody, restaurace, služby, MHD i kulturní vyžití. Tato nemovitost je ideální volbou pro klienty hledající reprezentativní bydlení v centru města nebo bezstarostnou investici. V případě zájmu lze nemovitost financovat hypotečním úvěrem přes naše hypoteční centrum. Nenechte si ujít tuto jedinečnou příležitost a kontaktujte nás pro další informace a dohodnutí termínu prohlídky. Rád Vás osobně přesvědčím o výjimečnosti této skvělé nemovitosti. Pro komunikaci uvádějte evidenční číslo zakázky N115872.


