Prodej bytu, 2+kk, 61 m²
Prodej bytu 2+kk, 61 m², Hostomice, ul. Tyršovo náměstí
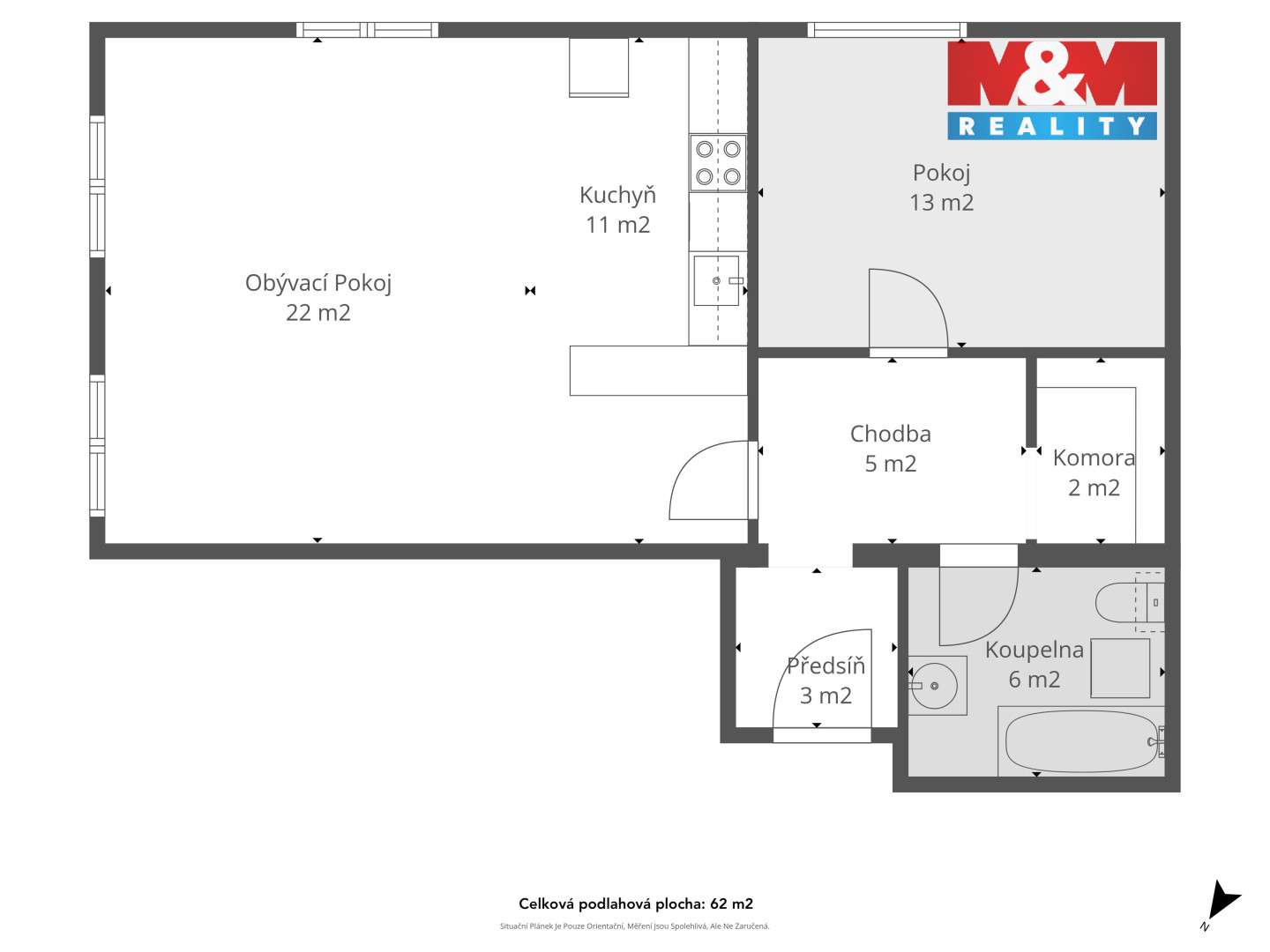
Hledáte prostorný byt 2+kk v okolí Brd pro vlastní bydlení nebo jako investici, v místě, kde je veškerá občanská vybavenost? Právě zde v Hostomicích je nově v nabídce komfortní a světlý byt 2+kk o celkové výměře 61 m2. Obývací pokoj spojený s kuchyní, velká ložnice, koupelna s WC a vanou, dále šatna jen dotváří pohodovou atmosféru tohoto bytu. Na podlahách plovoucí podlaha a dlažba, elektrické přímotopy s výhodným tarifem, rychlý internet. Výborná poloha bytu, na náměstí, pošta, lékaři, obchody, mateřská a základní škola se sportovní halou, restaurace, kavárna, dětské hřiště, autobusová zastávka na trase Beroun, Hořovice, Dobříš a vlakové spojení Příbram, Praha, je ideálním místem pro pro rodiny i jednotlivce, kteří ocení soukromí, pohodu i sportovní vyžití na turistických i cyklistických trasách. Parkování v okolí domu zdarma. Výborná dostupnost na D5 nájezd ve Zdicích nebo D4 v Dobříši. Beroun je vzdálený 20 minut, Praha Chuchle 37 minut jízdy autem. Financování hypo úvěrem zajistím.


