Prodej - dům/vila, 179 m²
Nízkoenergetický RD, Hostomice Dubinská
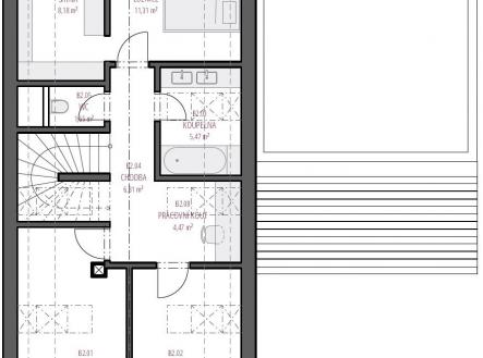
Nadstandardní nízkoenergetický dům v Hostomicích – výjimečný prostor, příroda a kvalita Nabízíme vám výjimečnou novostavbu rodinného domu v klidné části Hostomic – v lokalitě Dubinská, na kraji obce a zároveň v těsném kontaktu s přírodou. Dům je součástí projektu čtyř nízkoenergetických domů, který realizujeme jako místní rodinná firma vlastními silami. Dům jsme stavěli s vědomím, že budeme sousedé, a proto jsme si nemohli dovolit žádné kompromisy v kvalitě. Na rozdíl od běžných developerských projektů pro nás vztah se zákazníkem nekončí podpisem smlouvy. Tato dvoupodlažní dřevostavba je postavena z masivních CLT panelů – žádné OSB, ale poctivé pohledové dřevo v interiéru. Izolace je z přírodního dřevovlákna, fasáda provětrávaná, bez použití polystyrenu. Výsledkem je nízkoenergetický dům v energetické třídě A s velmi nízkými provozními náklady. Technologické vybavení domu mj. zahrnuje: • fotovoltaiku Victron 8 kWp s baterií 14 kWh, • tepelné invertorové čerpadlo vzduch–voda pro vytápění i chlazení, • inteligentní elektroinstalaci a řízení domu Loxone. Dům je skoro k nastěhování – dokončený ve fázi Shell & Core, tedy plně funkční a připravený k individuálnímu dokončení dle vašich preferencí a stylu (podlahy, vnitřní dveře, koupelny, kuchyně atd.). Díky velkým proskleným plochám a posuvným portálům se dům přirozeně otevírá do zahrady, která plynule přechází do okolní přírody. Dvě prostorné terasy nabízejí ideální prostor pro relaxaci, grilování nebo ranní kávu s výhledem do zeleně. Součástí pozemku je i krytý přístřešek pro dvě auta s přípravou na nabíječku pro elektromobil s integrovanou kolnou na zahradní nářadí. Hostomice nabízejí kompletní občanskou vybavenost – základní a mateřskou školu, lékaře pro děti i dospělé, lékárnu, potraviny, čerpací stanici, místní pivovar i další služby. Obec je výborně dopravně dostupná – leží mezi dálnicemi D5 a D4 s ideální dojezdovou vzdáleností do Prahy, Plzně, Berouna, Hořovic, Příbrami nebo Dobříše. Zaujalo vás toto kvalitní bydlení, kde se snoubí architektura, technologie a vztah k přírodě? Fotkami ani textem však nelze plně vystihnout atmosféra tohoto místa – je potřeba přijet, nadechnout se vůně dřeva a nechat se domem pohltit. Ozvěte se nám – rádi vás provedeme osobně a zodpovíme veškeré dotazy. O každém detailu víme vše – každý šroubek prošel našima rukama. Těšíme se na vaši návštěvu
ENERGON Reality - INDESEN, s.r.o.

