Prodej - dům/vila, 135 m²
RD/G 5+kk, 190 m2, Hostivice u Prahy, okr. Praha západ
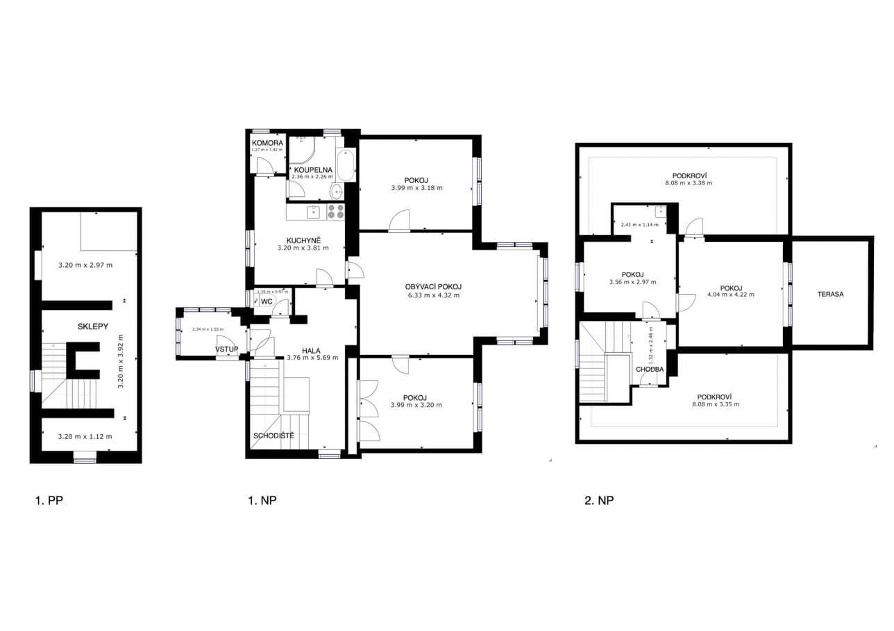
Rodinny dům s dispozicí 5+kk v dobrém, udržovaném stavu se nachází v obci Hostivice, okres Praha - západ, jen několik minut autem od hranice Prahy 6. Dům byl postaven v r. 1960, je vhodný i pro dvojgenerační bydlení. Je umístěný v klidné části rezidenční zástavby. Není v záplavové oblasti. Užitná plocha domu je 190 m2, pozemek zastavěné části včetně zahrady je celkem 531 m2. Dispozice: V přízemí je vstupní chodba, tři pokoje, kuchyně s kuchyňskou linkou, koupelna s vanou, toaleta. V podkroví je ložnice a pokoj s kuchyňským koutem, dále další dvě části podkroví vhodné pro další vestavbu. Na podlaze jsou parkety, dlažba, PVC, okna jsou plastová. V suterénu jsou sklepní místnosti, plynový kotel. Na zahradě je postavena zděná garáž pro 1 auto. Kompletní sítě: elektřina, plyn, kanalizace, internet, vlastní voda ze studny. V okolí obce se nabízí aktivity pro zdravý životní styl, cyklostezky, výlety. Dům má výborné a rychlé spojení do Prahy, na pražský okruh, letiště. Možnost využití autobusu nebo vlaku. V obci se nachází kompletní občanská vybavenost, supermarkety atd. Počet pokojů: 4+2x kuchyně Zastavěná plocha: 131 m2 Velikost zahrady: 400 m2 Užitná plocha celkem: 190 m2 Sklep: 25 m2 Přízemí: 98 m2 1. patro + podkroví: 34 + 33 m2


