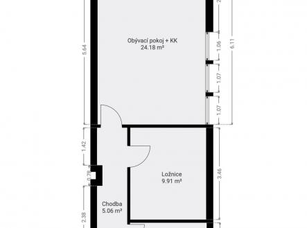
Pronájem bytu, 2+kk, 45 m²
Pronájem byt 2+kk, 45㎡
Velmi pěkný byt o dispozici 2+kk a obytné ploše 44 m², v ulici Unhošťská, Praha Západ - Hostivice. Byt je umístěn v druhém patře dvoupatrového cihlového domu z r. 2003. V domě není výtah. Byt je vzdálen 150 m2 od zastávky bus Hostivice, Jeneček pro linky 306, 365, 386 směřující k metru linky B ale také do Kladna, Stochova apod. To vše zajišťuje také zajišťuje také skvělou dostupnost do centra Hostivice i k veškeré místní občanské vybavenosti, jenž se nachází v případě chůze cca 10 min od domu. Dispozice dle prezentace. Orientace bytu na západ s volným výhledem. Byt po rekonstrukci před cca 10lety a průběžně udržován v kondici. K bytu náleží parkovací místo přímo naproti vchodu do domu. Vedle domu drobná stavba na uskladnění kol apod. společná pouze pro obyvatele domu. Základní vybavenost tvoří kuchyňská linka se spotřebiči (varná deska s elektrickou troubou, odsavač par, lednice, myčka). Koupelna je vybavena vanou, umývadlem a pračkou a wc. Byt je zařízený dle fotoprezentace. Vytápění a ohřev vody zajištuje vlastní plynový kotel. V domě vysokorychlostní internet. K nastěhování od 1.2. 2026. Nájem + zúčtovatelná záloha na poplatky vč. elektřiny a plynu 3000,-Kč. (pro jednu osobu) či 3500,-Kč (pro dvě osoby). V případě zájmu o prohlídku prosím zašlete na tel 777 113 173 info o sobě jako např. počet osob (byt je svou velikostí a rozměrem vhodný pouze pro max. 2 osoby), od kdy nájem, na jak dlouho, kuřák či nekuřák, děti, zvířata a případné speciální požadavky či podmínky a já se Vám poté ihned ozvu. Pro komunikaci uvádějte evidenční číslo zakázky N115839.


