Prodej bytu, 2+kk, 55 m²
Prodej bytu 2+kk - 55 m² + balkon, garážové stání, Ječná, Hostivice, Praha - západ
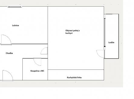
Světlý byt o dispozici 2+kk a užitné ploše 48 m² v cihlové budově z roku 2019 čeká na svého nového majitele v Hostivici u Prahy. K bytu patří soukromý balkon o velikosti 3,6 m², garážové stání a sklepní kóje o velikosti 3 m². Byt se nachází v ideální lokalitě v ulici Ječná v Hostivici. Poskytuje tak příjemné a klidné bydlení mimo centrum Prahy a zároveň jste necelých 10 minut autem i autobusem od metra Zličín. Autobusová zastávka je od domu vzdálena necelých 5 minut chůze. Jistě oceníte i bezprostřední blízkost minimarketu, který se nachází 100 m od domu. Lokalita je ideální pro procházky v přírodě a kolem nedalekého Strahovského a Břevského rybníka, který v letním období slouží jako přírodní koupaliště. Byt je vhodný jak k vlastnímu bydlení, tak jako investiční příležitost. Skládá se ze vstupní chodby, obývacího pokoje s kuchyňským koutem a jídelnou, ložnice a koupelny s vanou a toaletou. Disponuje vinylovou podlahou a dlažbou v koupelně. Dostatek denního světla po celý den zajišťují plastová okna, která směřují na jihovýchod a nabízí příjemný výhled na okolní krajinu. Vytápění a ohřev vody v bytě je zajištěno plynovým kotlem v domě. Byt se nachází ve 4. nadzemním podlaží z celkových pěti v bezbariérovém domě s výtahem. Energetický štítek budovy je třída "C". Nemovitost je v osobním vlastnictví a lze ji tedy financovat hypotečním úvěrem, který Vám zdarma pomůžeme vyřídit za nejvýhodnějších podmínek na trhu. Pro více informací nebo domluvení prohlídky se na mě neváhejte obrátit.

