Pronájem - restaurace, 220 m²
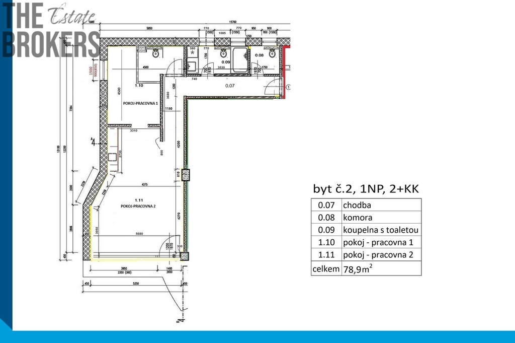
Pronájem restaurace 99 m² Hlavní, Horoušany - Horoušánky
Hledáte prestižní adresu pro své podnikání? Tento exkluzivní komerční prostor v novostavbě multifunkční vily nabízí vše – viditelnost, reprezentativnost i výjimečné technické standardy. Přímo na hlavní dopravní tepně obce (ul. Hlavní), kterou denně projede více než 10 000 vozidel (dle hlukové studie), se nachází nový komerční prostor o ploše 79 m² s navazující soukromou předzahrádkou/terasou 20 m². Ideální pro provoz bistra, kavárny, lékárny, ordinace, vzorkovny, prodejny potravin, pet shopu, kanceláře, poradenské služby či studio pro volnočasové aktivity. Klíčové benefity: Skvělé umístění: na hranici Prahy 9 a Prahy-východ, v žádané lokalitě u Klánovického lesa Moderní dispozice: Velkoplošná výloha, vchod z ulice, venkovní terasa, dvě prostorné místnosti (prodejna/recepce + kancelář/kuchyň/zasedací místnost) Zázemí: kavárna na 26 míst, kuchyň/přípravna, 1 šatnu s WC pro personál, 1 dámské WC se sprchou, 1 pánské WC. Možnost pronájmu skladu 10 m² Bezbariérový přístup a výtah – komfort pro klienty i zaměstnance Energeticky úsporné řešení: podlahové vytápění, elektrický kotel, masivní zateplení (50 cm zdivo + moderní fasáda) Venkovní parkoviště s kapacitou 8 míst Prostor je kolaudován pro provoz kavárny/bistra, ale díky své flexibilitě nabízí široké možnosti využití pro různé podnikatelské záměry. Investujte do úspěchu svého podnikání – ve spojení komfortu, viditelnosti a luxusu. Kontaktujte nás ještě dnes a domluvte si osobní prohlídku. Tento prostor je připraven stát se výkladní skříní vaší značky. Výše nájemného nezahrnuje provizi RK a vratnou kauci.


