Prodej - dům/vila, 350 m²
Rodinný dům po rekonstrukci, až 3 bytové jednotky, garáž
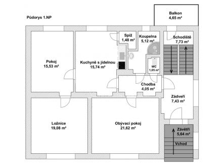
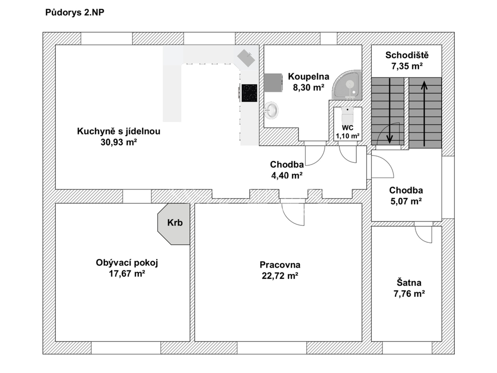
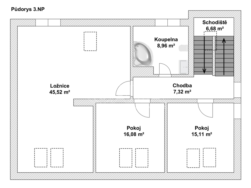
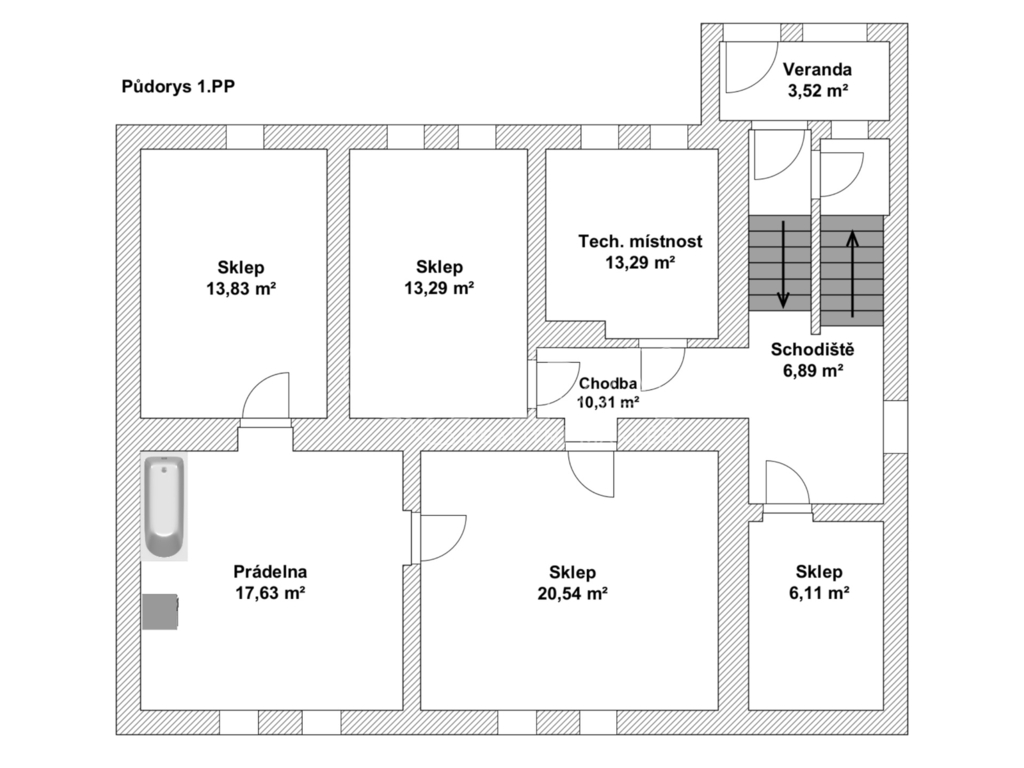
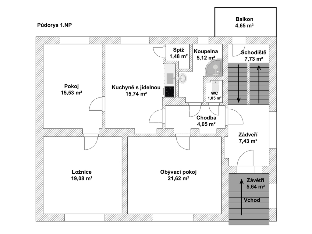
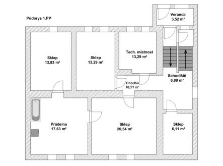
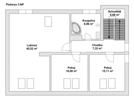
NOVÁ CENA! Dům, který je reálně dělitelný až na 3 samostatné bytové jednotky. Hledáte prostorný, technicky kvalitní dům, který nabízí okamžité bydlení, možnost pronájmu i podnikání, a to vše s nízkými provozními náklady? Pak je tento dům v obci Horní Moštěnice přesně pro vás. Základní informace • vícegenerační rodinný dům • užitná plocha cca 350 m² • pozemek cca 781 m² • slepá ulice – klid, soukromí, minimum provozu • energetická náročnost B – velmi úsporná • dům po rozsáhlé rekonstrukci Dispozice – hlavní konkurenční výhoda Dům je reálně dělitelný až na 3 samostatné bytové jednotky, případně ideální pro kombinaci bydlení + podnikání. Přízemí – byt 3+1 • kuchyně se špajzem • tři obytné pokoje • koupelna se sprchovým koutem • samostatné WC 1. patro – byt 3+kk • prostorná kuchyně s jídelnou • obývací pokoj s krbem • šatna • koupelna se sprchovým koutem • samostatné WC Podkroví – samostatná bytová jednotka / mezonet • dva samostatné pokoje • plus velký pokoj s přípravou na kuchyňský kout • koupelna s vanou, wc Ideální řešení pro: • vícegenerační bydlení • samostatný pronájem bytů • kanceláře, služby • sídlo firmy s bydlením Technický stav a vybavení • kompletní rekonstrukce rozvodů (elektřina, voda, odpady) • tepelné čerpadlo (2023) • fotovoltaika (2023) • zateplená fasáda (12–15 cm) • masivní zdivo cca 50 cm • zateplené sklepy i štíty • pálená střešní krytina Tondach • plastová okna s dvojskly • internet + datové rozvody v každé místnosti Výsledkem jsou velmi nízké provozní náklady, a to i vzhledem k velikosti domu. Sklep a hospodářské zázemí • sklepní prostory cca 100 m² • technická místnost • prádelna • sklad • výborné zázemí pro provoz domu i podnikání Díky velkorysé ploše se zde navíc přímo nabízí možnost vybudování domácí posilovny nebo wellness zóny. Exteriér a pozemek • uzavřený dvůr – maximální soukromí • garáž • sklad a hospodářská místnost • zahrada 258m2 • bezproblémové parkování přímo na pozemku Lokalita • plná občanská vybavenost v obci • školka, škola, lékař, obchody • vlak, autobus i MHD v docházkové vzdálenosti • Přerov pár minut jízdy, dobrá dostupnost z Olomouce – a s novou dálnicí ještě lepší Potenciál • k rodinnému bydlení • možnost samostatného pronájmu jednotlivých bytů • vhodné pro investory, podnikatele i kombinaci bydlení + příjem • energetická třída B = dlouhodobě udržitelný provoz Velký, energeticky úsporný vícegenerační dům po rekonstrukci, který nabízí okamžité bydlení, silný investiční potenciál a flexibilní využití v klidné lokalitě. V případě zájmu o více informací, příp. o prohlídku mne prosím kontaktujte. Cena na požádání.

