Pronájem - komerční objekt, sklad, 895 m²
Pronájem skladové haly o užitné ploše 895 m² v Tovární ulici v Horní Bříze
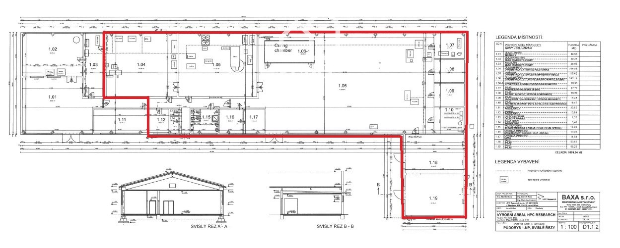
Předmětem pronájmu je skladová hala, která se nachází v uzavřeném, střeženém výrobním areálu v Horní Bříze - dojezdový čas z centra města Plzně je cca. 17 minut. Jedná se o halu postavenou kombinací betonové konstrukce a porobetonu. Užitná plocha haly je 895,m2, výška 3,5 m, vjezd je zajištěn průmyslovými vraty o rozměrech 3 m x 3 m. Před halou se nachází zpevněná venkovní betonová plocha, která použitelná na logistickou obsluhu haly a parkování osobních automobilů a dodávek. Hala disponuje průmyslovou betonovou podlahou a zahrnuje několik skladových prostor, kanceláří a kompletním zázemím pro zaměstnance. Půdorys haly je možné vidět mezi inzertními fotografiemi. Venkovní zpevněná plocha má dostatečnou únosnost pro logistickou obsluhu haly nákladními auty či vozidly kategorie TIR. Skladová hala je napojena na všechny inženýrské sítě tj. elektřinu, plyn, vodu a kanalizaci. Elektroinstalace je nyní dimenzována pro strojní výrobu cca. 3x140A. Vytápění je zajištěno plynovým kotlem s rozvodem teplé vody do radiátorů a sahar. Pronájem haly je možný od 15.1.2026. Areál disponuje 24 h ostrahou a vlastní trafostanicí. Zastávka autobusu a vlaku je vzdálena v dochozí vzdálenosti cca 700 m. Do areálu je bezproblémový příjezd nákladních vozidel a vozidel TIR. Zajištěn je i dostatek místa pro jejich vykládku či nakládku. V případě dotazů, či přání si nabízené prostory prohlédnout, neváhejte kontaktovat našeho makléře pana Michala Maška.


