Prodej - dům/vila, 260 m²
Rodinný dům 8+1, 260 m2
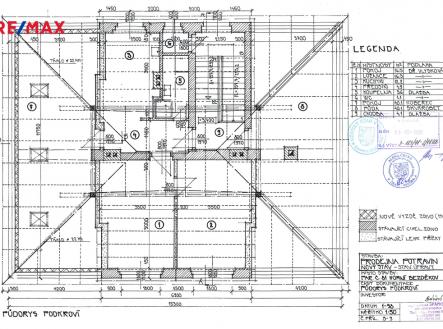
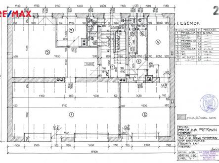
Exkluzivně Vám nabízím rodinný dům s dispozicí 8+1 a užitnou plochou 260 m² na pozemku 1.118 m² s potenciálem pro podnikání i bydlení v srdci Horního Bezděkova. Prostorný zděný rodinný dům se nachází na Hlavní ulici v Horním Bezděkově. V domě jsou 3 podlaží. Suterén ve kterém je sklep o velikosti 18 m², Přízemí, které je v současnosti pronajato jako květinářství (nájem do konce roku 2025). Dispozice zahrnuje hlavní prodejní plochu, zázemí, druhou část prodejny, sklad a toaletu. Před vchodem do domu je přistavěna dřevěná pergola, kterou lze po dohodě ponechat za úplatu, nebo její majitelé zajistí odstranění. 1. patro kde je bytová jednotka 3+1 o velikosti 93 m², zde je možné ihned bydlet. Půdní prostor 40 m² ten pak nabízí možnost vestavby další bytové jednotky či ateliéru. Celková výměra pozemku činí 1.118 m², což poskytuje dostatek prostoru pro relaxaci, zahradu nebo další stavební záměry. Dům je napojen na elektřinu, plyn, vodovod i kanalizaci, navíc disponuje dvěma vlastními studnami – kopanou (cca 9 m) a vrtanou (cca 15 m). O vytápění se stará plynový kotel. Možnosti využití Tento dům je ideální volbou pro: • kombinaci podnikání a bydlení – provozovna v přízemí a pohodlné bydlení v patře, • investici s výnosem – možnost rozdělení na až tři samostatné bytové jednotky a jejich následný pronájem, • nebo vícegenerační bydlení v klidném prostředí s dobrou občanskou vybaveností. Lokalita – Horní Bezděkov Horní Bezděkov je malebná, rozvíjející se obec obklopená krásnou přírodou, jen 7 minut od Kladna a přibližně 30 minut jízdy od Prahy (Zličína). V obci i jejím okolí najdete golfové hřiště, minigolf, cyklostezky a turistické trasy. Klid venkova se zde snoubí s výhodami blízkosti města – ideální kombinace pro život i podnikání. Dům se nachází přímo u hlavní silnice, což zajišťuje výbornou viditelnost pro komerční využití, a přitom nabízí dostatek soukromí v zadní části pozemku. Další dotazy Vám ráda zodpovím. Přednosti RD Variabilní využití – podnikání / bydlení / investice Možnost rozšíření o další byt Velký pozemek 1.118 m² Napojeno na všechny sítě + 2 studny Dobrá dopravní dostupnost – 7 min Kladno, 30 min Praha Klidná a příjemná lokalita s golfem a minigolfem v okolí


