Prodej - dům/vila, 95 m²
K prodeji levá část dvojdomku, 5+kk, pozemek 622m2, Brozánky u Mělníka.
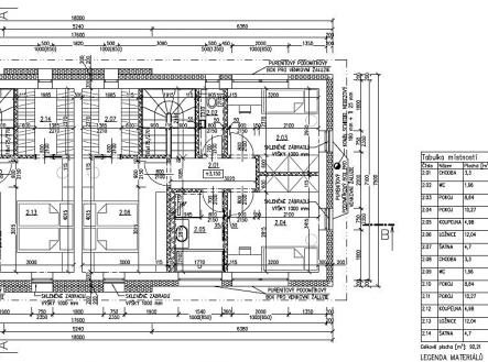
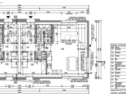
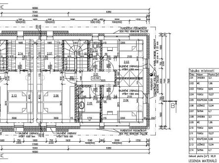
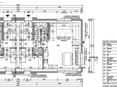
Ve výhradním zastoupení majitele Vám nabízíme k prodeji LEVOU část nízkoenergetické, zděné, zateplené budoucí novostavby dvojdomku v dispozici 5+kk+ šatna + parkovací místa na krásném, slunném pozemku o výměře 612m2 s výhledem na Mělnický zámek a Hořínský park v klidné malebné vesničce Brozánky, 1km od Mělníka. Rodinný dům je nyní ve výstavbě s plánovaným termínem dokončení podzim 2026. Stav výstavby viz foto ve fotogalerii. Dvojdomek - každý v dispozici 5+kk + šatna o užitné ploše 95m2 + pozemek / zahrada o výměře cca 612m2. Pozemek je mírně svažitý, osázený vzrostlými ovocnými stromy. Ve spodní části je ukončen Hořínským potokem, který navazuje na řeku Labe – místo s jedinečnou atmosférou a možností přímého vstupu k vodě. Rodinný dům není v záplavové oblasti. Dispozice: 5+kk + šatna o užitné ploše 95m2 + pozemek / zahrada o výměře cca 612m2 1NP se nachází zádveří s chodbou, ze které je vchod do prostorného slunného obývacího pokoje s navazující jídelnou a kuchyní se vstupem francouzskými dveřmi na terasu a zahradu s krásným výhledem do zeleně Hořínského parku a na Mělnický zámek. Dále je na patře k dispozici samostatný pokoj, koupelna se sprchou, WC a technická místnost. Schodištěm se dostáváme do 2NP, kde je hala, tři samostatné, slunné pokoje, šatna, koupelna s vanou, sprchou a toaletou. Nad stropem je prostorná půda, která může sloužit jako praktický úložný prostor. Stavba: zděná, zatepleno 15cm, kvalitní laminátové podlahy a dlažba, schody obložené dřevem. Podlahové vytápění ve všech místnostech a ohřev teplé vody zajišťován v kombinovaném režimu tepelné čerpadlo, které disponuje rovněž funkcí klimatizace. Příprava na bezpečností venkovní žaluzie. Na vyžádání možnost instalace krbové vložky pro přípravu krbových kamen. Parkovací stání pro dvě auta bude zajištěno na pozemku a opatřeno pojezdovými vraty na elektrický pohon. Pozemek bude oplocen. Veškerá povolení a stavební dokumentace je na vyžádání k dispozici. Možnost si zvolit zařizovací předměty jako je podlahová krytina, interiérové dveře apod. Financování je postupné dle výstavby (standardní postupy). Možnosti financování hypotékou, zajišťujeme případné zařízení a schválení. Ve fotodokumentaci jsou ilustrativní vizualizace budoucí stavby. Brozánky jsou vesnice a je částí obce Hořín. Nachází se jeden kilometr města Mělník. Vesnicí protéká Hořínský potok, který je součástí Hořínského parku a je ideálním místem pro bydlení, aktivní odpočinek a relaxaci. Občanská vybavenost (škola, školka, lékaři, obchod ve vedlejší obci Hořín (1km) nebo vše ve městě Mělník (1km). Rozsáhlé možnosti turistiky, cykloturistiky a dalších sportovních aktivit. Spojení do Mělníka a Praha BUS nebo vlakem. Autem do centra 35minut. Tento dům nabízí moderní komfort, pozemek s atmosférou parku a výbornou dostupností do Prahy i plnou občanskou vybavenost v blízkém Mělníku. Prodávající si vyhrazuje právo vybrat kupujícího na základě jím zvolených kritérií.


