Prodej - dům/vila, 115 m²
Prodej výstavby domu na pozemku v Holešově
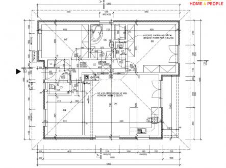
Zprostředkujeme Vám nabídku výstavby domu typu Markéta 4+kk, 115m² v provedení na klíč v Holešově ulice Kvasničkova na pozemku 592m². Projekt ekonomického domu Markéta o dispozici 4+kk zastřešuje aktuální potřeby dnešní doby se zastavěnou plochou 115m² a užitnou plochou 94m². Jedná se o kvalitní zděnou stavbu z materiálu Porfix 300 a díky minimalizaci hluchých prostorů a přesunuté střešní konstrukci zároveň cenově nenáročný rodinný dům. Svojí jednoduchou konstrukcí je předurčený pro rychlou a nekomplikovanou výstavbu. Optimální půdorys poskytuje výborný poměr mezi velikostí plochy obvodových stěn a vnitřního prostoru. Minimální plocha obvodových stěn takto šetří náklady nejen při výstavbě, ale i při vytápění domu. Ekonomický dům Markéta je navrhnutý tak, aby měsíční provozní náklady na tento dům byly přibližně třikrát nižší než u bytu podobné podlahové výměry. Prostředky ušetřené na provozu můžete použít například na splátky hypotéky, čímž se dům stává dostupný téměř pro každého. Uvedená cena obsahuje pozemek, základovou desku, projekt, vyřízení stavebního povolení, DPH a stavba bude provedena na klíč a předána k okamžitému užívání. Kolaudace je samozřejmostí. Těchto typů domů jsme v minulosti realizovali nespočet a tak máme spousty zajímavých dispozičních řešení. (Součástí ceny není kuchyňská linka a světla – dokážeme za zvýhodněných podmínek zajisti přes naše dodavatele). V uvedené ceně můžete počítat také s finálními povrchovými úpravami exteriéru i interiéru, a to včetně elektroinstalací, sanitárního vybavení s bateriemi, interiérovými dveřmi včetně obložek a vytápění bude řešeno teplovodním podlahovým topením v kombinaci tepelného čerpadla se 180L zásobníkem na teplou vodu. Dle dohody změníme systém vytápění nebo vystavíme komín pro krbové kamna nebo pro využití krbové vložky. Kryté garážové stání spojené s domem nebo terasu za příplatek. Pro náročnější klienty máme nabídku nadstandardního vybavení chytré domácnosti, klimatizaci, externí žaluzie, rolety, rekuperaci nebo fotovoltaiku. Úprava dispozice nebo tvaru domu povolena. Délka výstavby od vydání stavebního povolení 12-13 měsíců. Nabízený pozemek o rozměrech 21,4m široký a 27,6m dlouhý je v územním plánu určený pro výstavbu rodinného bydlení. V této lokalitě již probíhá výstavba rodinných domů. Tento typ domu Vám můžeme ukázat. Výstavbu můžeme zahájit do 3 měsíců od podpisu smlouvy o dílo. Inženýrské sítě u pozemku: elektřina a přípojné místo zřízeno, kanalizace jak dešťová tak splašková, vodovod, plyn a optický kabel. Pozemek je rovinatý. Více u makléře a to včetně dohodnutí se na prohlídce domu Markéta. Změna za jiný dům je povolena. Doporučuji. Ev. číslo: 31815.


