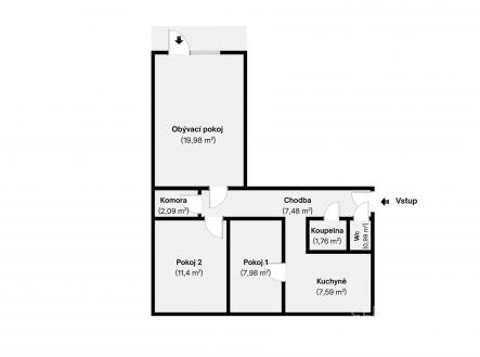
Prodej bytu, 3+1, 60 m²
Byt 3+1 s balkonem – Holešov, ul. Bezručova
Nabízím k prodeji byt 3+1 na ulici Bezručova v Holešově. Nachází se v 7. patře panelového domu s výtahem a má krásný výhled na město a okolí. Byt je určený k rekonstrukci, má ale zděné jádro, což je výhodou pro případné úpravy. V pokojích jsou parkety, z obývacího pokoje je vstup na balkón, k bytu patří i sklepní kóje. Dům je udržovaný a čistý. Nachází se v klidné části města, jen pár minut chůze od centra a obchodu. Pokud hledáte byt s potenciálem, který si upravíte podle sebe, je tohle dobrá příležitost. Zavolejte mi a domluvte si prohlídku, ráda Vám byt ukážu.


