Prodej bytu, 3+kk, 68 m²
Prodej bytu 3+kk, 68 m², I.Olbrachta, Hodonín
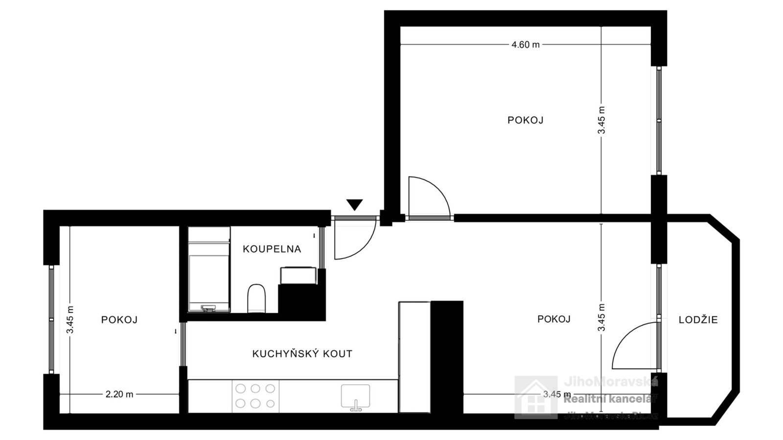
Hledáte byt po kompletní rekonstrukci na klidném místě v Hodoníně? Hledáte investiční byt ke krátkodobemu ubytování? S bezproblémovým parkováním a ihned k nastěhování / provozování? Ve výhradním zastoupení majitelky Vám zprostředkujeme koupi bytu o velikosti 3+kk po kompletní modernizaci v ulici I. Olbrachta v okresním městě Hodonín. Bytová jednotka se nachází ve třetím nadzemním podlaží ze čtyř bez výtahu. Je v osobním vlastnictví a bez dluhů na revitalizaci bytového domu. Kompletní rekonstrukce bytu proběhla v roce 2025. Dispozice bytu: chodba, koupelna s toaletou a sprchovým koutem, kuchyňský kout s vestavěnými spotřebiči, ložnice, pokoj, pokoj s přístupem do lodžie, který má výhed do nově budovaného parku. V mezipatře se nachází komora. Ve sklepních prostorách bytového domu je prostorný uzamykatelný sklep. Užitná plocha bytu je 68 m² s obytnou plochou 51 m². (plocha lodžie 4,30 m², komora v mezipatře 1,30 m² a zděný sklep 11,60 m². Měsíční náklady na provoz bytu jsou ve výši 4.895 Kč (elektřina, voda, stočné, služby a fond oprav). Byt má vlastní bojler a je vytápěn vlastním plynovým kotlem. Kuchyňská linka je vybavena elektrickou troubou, mikrovlnou troubu a indukční varnou deskudále je v kuchyňské lince zabudována digestoř, myčka, pračka a lednice s mrazničkou. Dveře do koupelny a ložnice se zasouvají do pouzdra. Byt je vytápěn vlastním elektrickým kotlem. V blízkém okolí bytového domu je mateřská i základní škola, obchod s potravinami a dětské hřiště. V širším okolí pošta a sportovní hala. Na autobusovou zastávku MHD dojdete do 7 minut chůze. Parkování přímo před domem. K nastěhování dohodou. Zaujala Vás tato nabídka? Máte zájem o prohlídku? Vám vyhovující termín prohlídky (datum a čas) s kontakty na Vás (e-mail + tel. číslo) zasílejte formou odpovědi na tuto inzerci. Realitní makléř Vás následně bude telefonicky kontaktovat. V případě více vážných zájemců, si prodávající vyhrazuje právo vybrat kupujícího, na základě jím stanovených kritérií.


