Prodej - obchodní prostor, 241 m²
Prodej obchodního prostoru 241,2 m2, Hluboká nad Vltavou
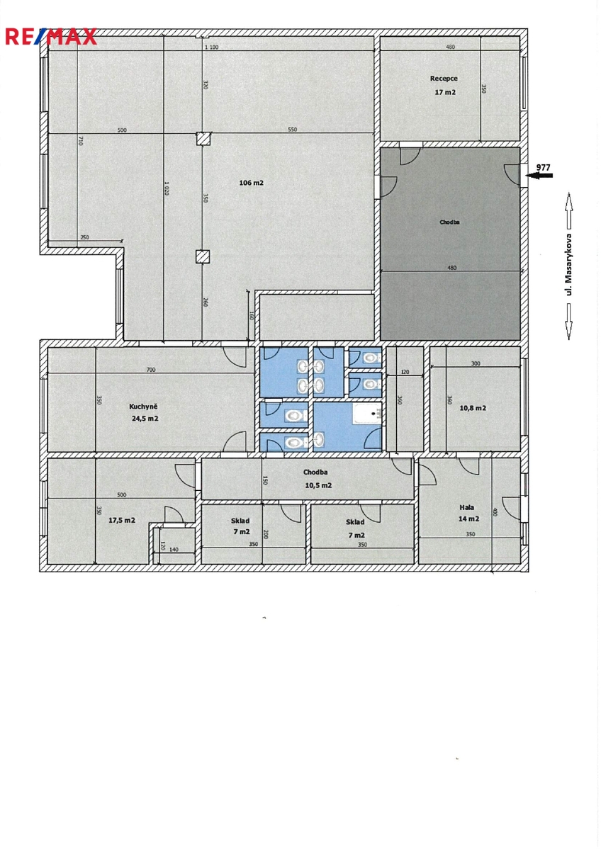
Nabízíme k prodeji obchodní prostor o výměře 241,2 m², nacházející se v historickém městě Hluboká nad Vltavou, v blízkosti centra, konkrétně v ulici Masarykova. Tento přízemní prostor má vstup z podloubí historického domu, což dodává celé lokalitě jedinečný charakter. Výhodou tohoto prostoru je vstupní recepce s okny do ulice, díky které je prostor dostatečně prosvětlený a ideální pro vystavení zboží či reklamy a uvítání pro hosty. Pro tyto účely slouží ještě další dvě místnosti, které mají okna a vstup do ulice. Díky tomu může být Vaše firma nepřehlédnutelná. Dominantou prostoru je velká vstupní hala, která může sloužit jako hlavní obchodní prostor či kanceláře. Dále zde najdete několik menších místností, které mohou být využity například jako sklady. K dispozici je také prostorné zázemí v podobě velké kuchyně, šatny, toalety a koupelny se sprchou, což zajišťuje pohodlí pro pracovníky. Vytápění je řešeno centrálním plynovým kotlem pro celý dům s rozvody do radiátorů, tímto je řešen i ohřev vody. Dodávka tepla je pro uvedený prostor měřená kalorimetrem. Vodovod i kanalizace jsou obecní. Tento prostor je ideální pro firmy, které hledají vhodné místo pro prodejnu, sklad nebo výrobnu. Dostatek prostoru a zázemí v objektu také umožňuje poskytování služeb, např. kavárna, cukrárna, kadeřnictví, barber-shop, zubní laboratoř, kosmetický salon, sportovní aktivity, fitness, vzdělávací centrum, atd... prostor představuje ideální řešení i pro firmy zaměstnávající více pracovníků. Vzhledem k lokalitě a dispozici je možné prostor předělat i na byt, což by mohlo představovat zajímavou investiční příležitost či příležitost k příjemnému bydlení. Hluboká nad Vltavou je jedním z nejoblíbenějších míst na jihu Čech, známá svým půvabným historickým centrem a ikonickým zámkem, který je vyhledávaným turistickým cílem. Město se pyšní nejen bohatou historií, ale také rozmanitou nabídkou kulturního vyžití, restaurací a obchodů. Okolí nabízí příležitosti pro sportovní a rekreační aktivity, jako je cyklistika nebo procházky v malebné přírodě. Díky své strategické poloze je Hluboká nad Vltavou dobře dostupná a poskytuje návštěvníkům široké možnosti vyžití, což intenzivně přispívá k prosperitě místních podniků a zaručuje dobrou návštěvnost. V případě zájmu o prohlídku nás neváhejte kontaktovat. Prodávající si vyhrazuje právo vybrat kupujícího na základě jím zvolených kritérií.


