Prodej bytu, 1+1, 32 m²
Byt 1+1, OV, 34m2, Heřmanův Městec
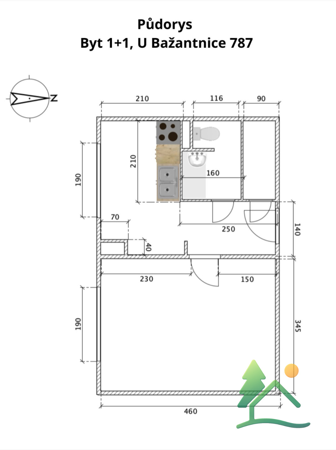
Nabízíme k prodeji byt o dispozici 1+1 v osobním vlastnictví v klidné části města Heřmanův Městec. Byt se nachází ve 3. nadzemním podlaží bytového domu, přičemž na patře jsou tři bytové jednotky. Byt je určen k celkové rekonstrukci, což představuje ideální příležitost pro nového majitele realizovat vlastní představy o bydlení. Nachází se zde původní umakartové jádro, díky čemuž lze dispozici i technické řešení upravit podle aktuálních trendů a individuálních potřeb. Technický stav domu: - Dům je zateplený - Plastová okna - Stoupačky v plastu (voda i odpad) Výhodou jsou také velmi nízké měsíční náklady. Orientace je na jih s výhledem směrem na zámecký park. Dalším benefitem je plánované vybudování nového parkoviště přímo u domu, které zvýší komfort parkování a atraktivitu lokality.


